Рейтинг: 56
не верифицирован
Всего отзывов: 0
  • Работ в портфолио: 6
  • Типовых услуг: 0
  • Работ на продажу: 0
Был на сайте:

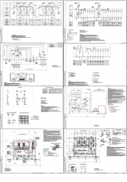
Трансформаторная подстанция 6/0.4с расчётами и релейной защитой

Описание

Разработанная "С нуля" 2-х трансформаторная подстанция с расчётами и релейной защитой. Всё оборудование Shneider: трансформаторы Trihal, высоковольтные ячейки SM6, низковольтные ячейки Prisma, Шинопроводы Kanalis.
Расчёты выполнены в программном продукте Smath.

Презентация проекта

pic2042232.jpg

Оценили проект:

0