Гостиная
Для полной функциональности этого сайта необходимо включить JavaScript.
На сайте с: 01.12.2021
Тигран Григорян
tigran1211
Рейтинг: 119
не верифицирован
Всего отзывов:
0
Работ в портфолио:
79
Типовых услуг:
0
Работ на продажу:
0
Был на сайте:
2021-12-18 в 15:43
+7 906 795-44-55
inbox
tr-grig@mail.ru
Предложить работу
Добавить в избранное
Добавить рекомендацию
Пожаловаться
Дизайн пространства
25
0
Гостиная
Используемые навыки:
Дизайн интерьеров
Описание
Решение
Результат
Соавторы
Презентация проекта
Примеры реализации
Описание
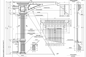
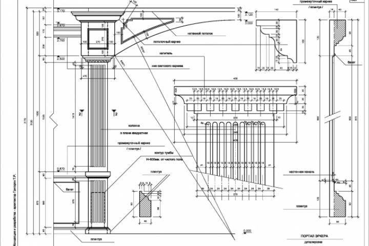
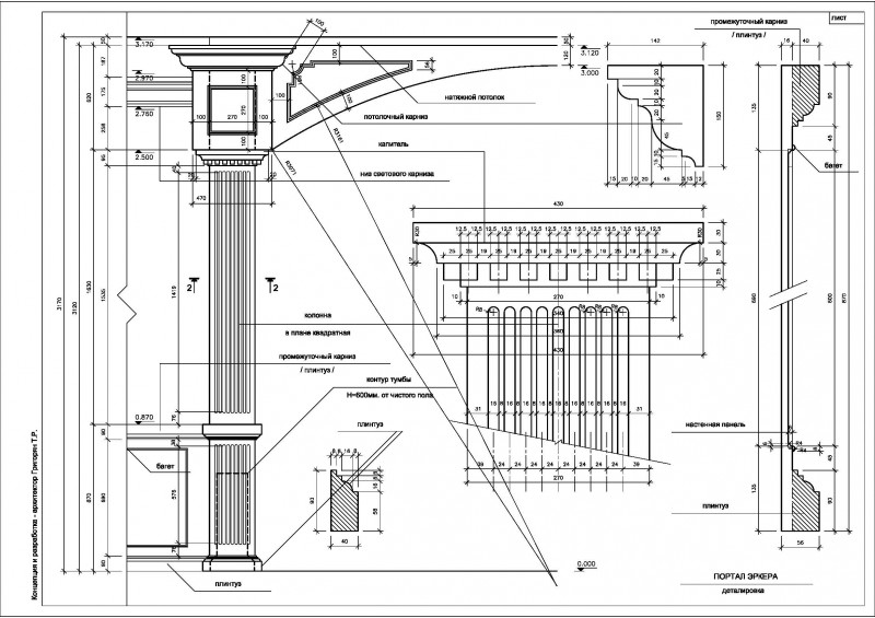
Чертежи портала эркера в зале
Презентация проекта
Оценили проект:
0
×
Оценили проект
×
Авторизация
Для того чтобы оценивать проекты, вам нужно войти на сайт
Другие проекты
Все проекты
ТЦ "Олимпик Плаза 2"
Подсобные постройки
Армянская Апостольская Церковь в Москве
FREELANCE.RU
Toggle navigation
Нанять фрилансера
Заказчику
Найти по специализации
Найти по услугам
Провести конкурс
Разместить задание
Виртуальный HR
Другое
Найти работу
Фрилансеру
Найти задание
Присоединиться к команде
Участвовать в конкурсе
Предложить услугу
Другое
Возможности
Для заказчика
Для фрилансера
Вход
Разместить задание
▲