Гостиная
Для полной функциональности этого сайта необходимо включить JavaScript.
На сайте с: 01.12.2021
Тигран Григорян
tigran1211
Рейтинг: 119
не верифицирован
Всего отзывов:
0
Работ в портфолио:
79
Типовых услуг:
0
Работ на продажу:
0
Был на сайте:
2021-12-18 в 15:43
+7 906 795-44-55
inbox
tr-grig@mail.ru
Предложить работу
Добавить в избранное
Добавить рекомендацию
Пожаловаться
Дизайн пространства
24
0
Гостиная
Используемые навыки:
Дизайн интерьеров
Описание
Решение
Результат
Соавторы
Презентация проекта
Примеры реализации
Описание
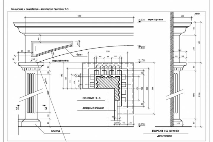
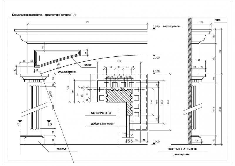
Чертежи портала на кухню
Презентация проекта
Оценили проект:
0
×
Оценили проект
×
Авторизация
Для того чтобы оценивать проекты, вам нужно войти на сайт
Другие проекты
Все проекты
ТЦ "Олимпик Плаза 2"
Реконструкция жилого дома
Ограждение участка
FREELANCE.RU
Toggle navigation
Нанять фрилансера
Заказчику
Найти по специализации
Найти по услугам
Провести конкурс
Разместить задание
Виртуальный HR
Другое
Найти работу
Фрилансеру
Найти задание
Присоединиться к команде
Участвовать в конкурсе
Предложить услугу
Другое
Возможности
Для заказчика
Для фрилансера
Вход
Разместить задание
▲