проект электроснабжения
Для полной функциональности этого сайта необходимо включить JavaScript.
Санкт-Петербург
54 года
На сайте с: 08.12.2020
Ни шагу назад, Ни шагу на месте, а только вперед ...
Юрис Краулис
yuriskraulis
Рейтинг: 68
не верифицирован
Всего отзывов:
0
Работ в портфолио:
8
Типовых услуг:
0
Работ на продажу:
0
Был на сайте:
2021-12-22 в 00:33
inbox
Предложить работу
Добавить в избранное
Добавить рекомендацию
Пожаловаться
Инженерия
11
0
проект электроснабжения
Используемые навыки:
Электроснабжение
Описание
Решение
Результат
Соавторы
Презентация проекта
Примеры реализации
Описание
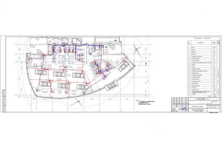
бытовые розетки, полностью весь раздел
Презентация проекта
Оценили проект:
0
×
Оценили проект
×
Авторизация
Для того чтобы оценивать проекты, вам нужно войти на сайт
Другие проекты
Все проекты
Проект Ар автосалон
проектирование объекта автоцентра
проект теплоснабжения Кафе
FREELANCE.RU
Toggle navigation
Нанять фрилансера
Заказчику
Найти по специализации
Найти по услугам
Провести конкурс
Разместить задание
Виртуальный HR
Другое
Найти работу
Фрилансеру
Найти задание
Присоединиться к команде
Участвовать в конкурсе
Другое
Возможности
Для заказчика
Для фрилансера
Вход
Разместить задание
▲