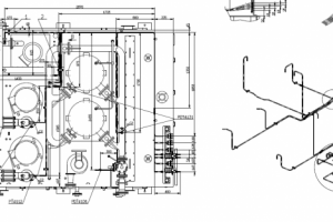
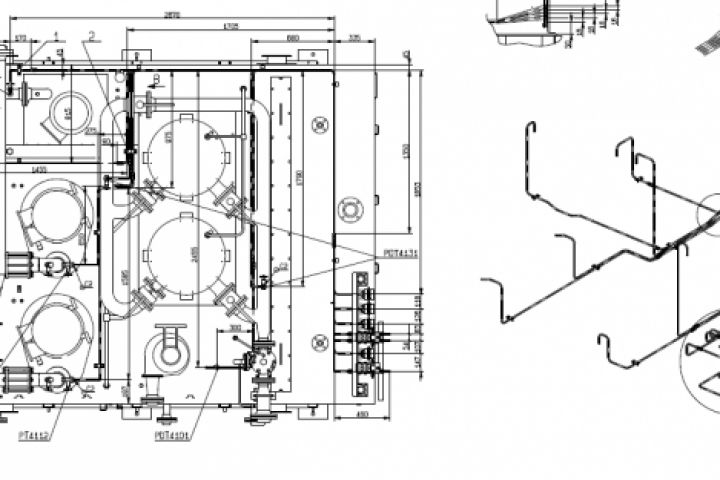
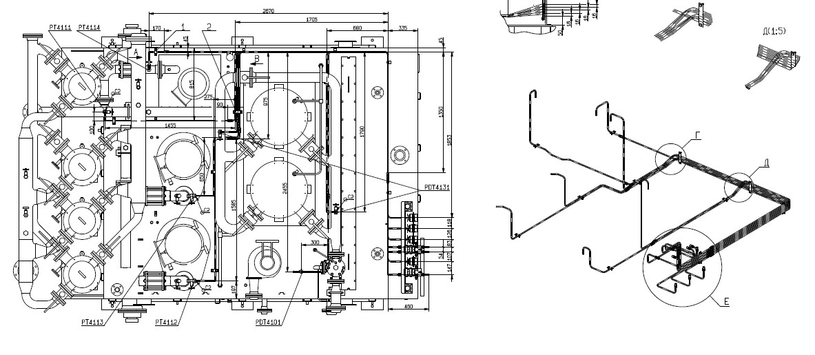
Импульсные трубопроводы КИПиА
Для полной функциональности этого сайта необходимо включить JavaScript.
Санкт-Петербург
На сайте с: 19.04.2020
Владимир Ставицкий
vladstav
Рейтинг: 72
не верифицирован
Всего отзывов:
0
Выполнил заданий:
1
Работ в портфолио:
22
Типовых услуг:
0
Работ на продажу:
0
Был на сайте:
2022-02-15 в 00:22
+7(962)690-70-73
inbox
vl.stavitskiy@gmail.com
Предложить работу
Добавить в избранное
Добавить рекомендацию
Пожаловаться
Инженерия
8
0
Импульсные трубопроводы КИПиА
Используемые навыки:
Машиностроение
Описание
Решение
Результат
Соавторы
Презентация проекта
Примеры реализации
Описание
Трассировка в ProPiping
Презентация проекта
Оценили проект:
0
×
Оценили проект
×
Авторизация
Для того чтобы оценивать проекты, вам нужно войти на сайт
Другие проекты
Все проекты
Теплоизоляция выхлопного патрубка газовой турбины.
Блок маслоснабжения турбокомпрессорного агрегата
Шумоглушитель входного тракта ГТУ
FREELANCE.RU
Toggle navigation
Нанять фрилансера
Заказчику
Найти по специализации
Найти по услугам
Провести конкурс
Разместить задание
Виртуальный HR
Другое
Найти работу
Фрилансеру
Найти задание
Присоединиться к команде
Участвовать в конкурсе
Предложить услугу
Другое
Возможности
Для заказчика
Для фрилансера
Вход
Разместить задание
▲