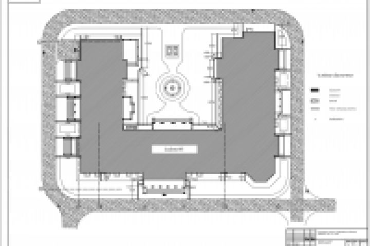
План водоотведения особняка. Оцифровка
Для полной функциональности этого сайта необходимо включить JavaScript.
Киев
На сайте с: 18.05.2015
Быстро, качественно, недорого - выбирай 2/3
Александр Любицкий
AlexxCad30
Рейтинг: 152
не верифицирован
Всего отзывов:
8
0
Выполнено заданий:
9
Работ в портфолио:
62
Типовых услуг:
3
Работ на продажу:
0
Был на сайте:
2022-02-24 в 12:47
+380731000897
inbox
telegram
whatsapp
covkacustom@gmail.com
Вконтакте
Предложить работу
Добавить в избранное
Добавить рекомендацию
Пожаловаться
Инженерия
30
0
План водоотведения особняка. Оцифровка
Используемые навыки:
Чертежи/Схемы
Описание
Решение
Результат
Соавторы
Презентация проекта
Примеры реализации
Описание
Презентация проекта
Оценили проект:
0
×
Оценили проект
×
Авторизация
Для того чтобы оценивать проекты, вам нужно войти на сайт
Другие проекты
Все проекты
Мост и освещённые скамейки в современном стиле
Робот-контейнеризатор
Nixie clock
FREELANCE.RU
Toggle navigation
Нанять фрилансера
Заказчику
Найти по специализации
Найти по услугам
Провести конкурс
Разместить задание
Виртуальный HR
Другое
Найти работу
Фрилансеру
Найти задание
Присоединиться к команде
Участвовать в конкурсе
Предложить услугу
Другое
Возможности
Для заказчика
Для фрилансера
Вход
Разместить задание
▲