Рейтинг: 51
не верифицирован
Всего отзывов: 0
  • Работ в портфолио: 1
  • Типовых услуг: 0
  • Работ на продажу: 0
Был на сайте:

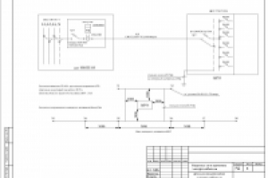
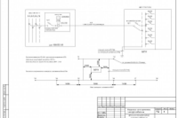
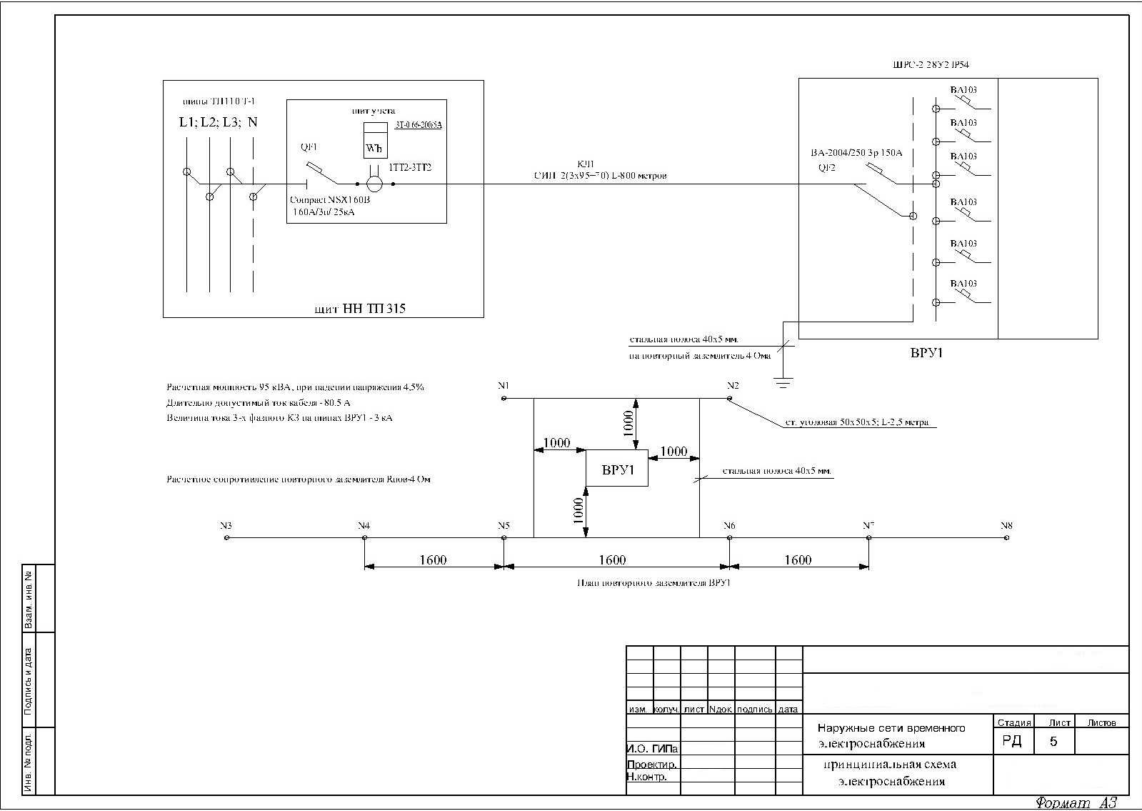
Линейная схема временного электроснабжения

Используемые навыки:

Описание

Данная схема разработана для временного электроснабжения строительной площадки мощностью 95 кВА.

Презентация проекта

pic1153825.jpg

Оценили проект:

0