Работа 4093647
Для полной функциональности этого сайта необходимо включить JavaScript.
На сайте с: 29.03.2021
Анна Фролова
frolla7
Рейтинг: 50
не верифицирован
Всего отзывов:
0
Работ в портфолио:
20
Типовых услуг:
0
Работ на продажу:
0
Была на сайте:
2022-05-02 в 21:15
+79959438372
inbox
Предложить работу
Добавить в избранное
Добавить рекомендацию
Пожаловаться
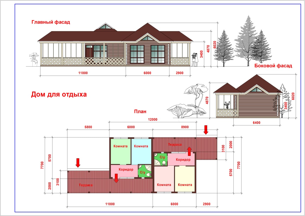
Дизайн пространства
15
0
Работа 4093647
Используемые навыки:
Архитектурное проектирование
Описание
Решение
Результат
Соавторы
Презентация проекта
Примеры реализации
Описание
Презентация проекта
Оценили проект:
0
×
Оценили проект
×
Авторизация
Для того чтобы оценивать проекты, вам нужно войти на сайт
Другие проекты
Все проекты
Работа 4093657
Работа 4093659
Работа 4093645
FREELANCE.RU
Toggle navigation
Нанять фрилансера
Заказчику
Найти по специализации
Найти по услугам
Провести конкурс
Разместить задание
Виртуальный HR
Другое
Найти работу
Фрилансеру
Найти задание
Присоединиться к команде
Участвовать в конкурсе
Предложить услугу
Другое
Возможности
Для заказчика
Для фрилансера
Вход
Разместить задание
▲