Рейтинг: 126
не верифицирован
Всего отзывов: 0
  • Работ в портфолио: 76
  • Типовых услуг: 0
  • Работ на продажу: 0
  • Зарегистрирован: 25.01.2017
Был на сайте:

Проект электроснабжения для 55 квартирного жилого дома

Используемые навыки:

Описание

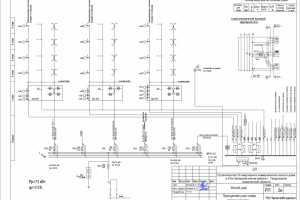
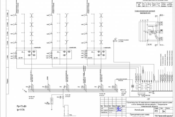
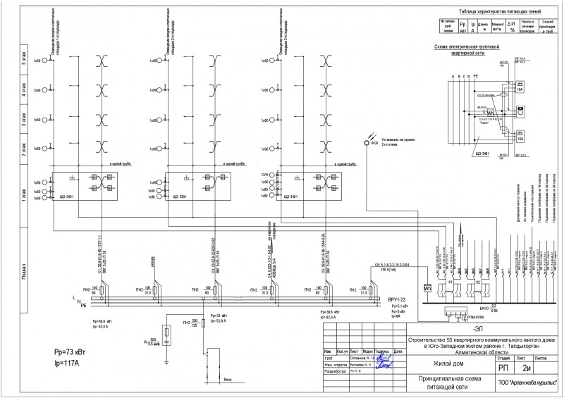
Проект электроснабжения 55 квартирного жилого дома, выполнен согласно требований технических условий, действующих на тот момент нормативных документов и требований ГОСТ. В проекте выполнены листы - общих данных, принципиальной схемы распределительной сети, планов осветительной и розеточной сетей, планов распределительных сетей и молниезащиты. В проекте также выполнена система уравнения потенциалов и молниезащита. На данный момент проект прошел Государственную экспертизу, объект построен и введен в эксплуатацию.

Презентация проекта

pic3641244.jpg

Оценили проект:

0