Рейтинг: 126
не верифицирован
Всего отзывов: 0
  • Работ в портфолио: 76
  • Типовых услуг: 0
  • Работ на продажу: 0
  • Зарегистрирован: 25.01.2017
Был на сайте:

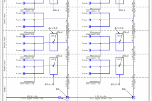
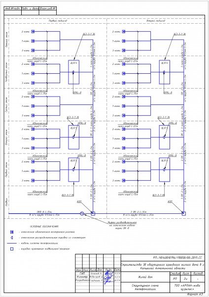
Проект телефонизации к 30 квартирному жилому дому

Используемые навыки:

Описание

Проект телефонизации для 30 квартирного жилого дома выполнен согласно требований технических условий по технологии GPON, задания на проектирование и нормативных документов. Оформление проекта выполнено согласно требований ГОСТ. Проект прошел частную экспертизу с положительной оценкой.

Презентация проекта

pic3641769.jpg

Оценили проект:

0