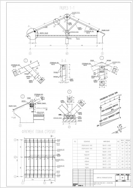
Конструирование элементов стропильной системы
Для полной функциональности этого сайта необходимо включить JavaScript.
Москва
На сайте с: 15.06.2021
Екатерина Петаева
kate2012
Рейтинг: 68
не верифицирован
Всего отзывов:
0
Работ в портфолио:
8
Типовых услуг:
0
Работ на продажу:
0
Была на сайте:
2022-05-27 в 10:54
89687902254
inbox
whatsapp
ketpetp@gmail.com
Предложить работу
Добавить в избранное
Добавить рекомендацию
Пожаловаться
Инженерия
11
0
Конструирование элементов стропильной системы
Используемые навыки:
Строительные конструкции
Описание
Решение
Результат
Соавторы
Презентация проекта
Примеры реализации
Описание
Презентация проекта
Оценили проект:
0
×
Оценили проект
×
Авторизация
Для того чтобы оценивать проекты, вам нужно войти на сайт
Другие проекты
Все проекты
Проектирование 9-ти этажного кирпичного жилого дома
Проектирование 9-ти эажного кирпичного жилого дома
Конструирование элементов стропильной системы
FREELANCE.RU
Toggle navigation
Нанять фрилансера
Заказчику
Найти по специализации
Найти по услугам
Провести конкурс
Разместить задание
Другое
Найти работу
Фрилансеру
Найти задание
Присоединиться к команде
Участвовать в конкурсе
Другое
Возможности
Для заказчика
Для фрилансера
Вход
Разместить задание
▲