Нестандартный взгляд на стандартные вещи.

Елена Воробьева leljka78

Рейтинг: 176
Паспорт верифицирован
Всего отзывов: 2 0
Выполнила заданий: 6
  • Работ в портфолио: 74
  • Типовых услуг: 3
  • Работ на продажу: 0
  • Возраст: 47 лет
  • Зарегистрирован: 15.11.2018
Была на сайте:

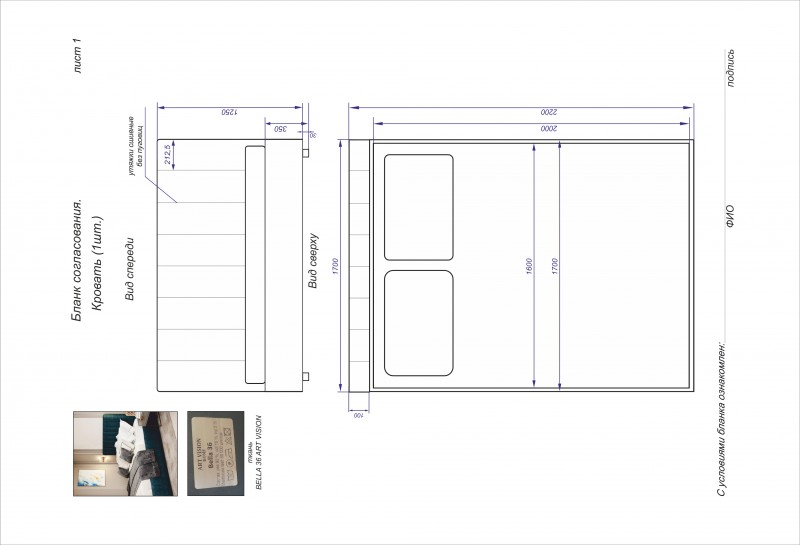
Проектные чертежи мягкой мебели по фото.

Используемые навыки:

Описание

Было предоставлено фото, по которому создан чертеж для согласования проекта мягкой мебели с клиентом. Чертеж в точном масштабе с отражением ключевых замеров, требуемых для производства.

___________________
Цена: 800 руб.

Презентация проекта

pic3904469.jpg

Оценили проект:

0