Рейтинг: 147
не верифицирован
Всего отзывов: 0
  • Активность:
  • Работ в портфолио: 17
  • Типовых услуг: 0
  • Работ на продажу: 0
Был на сайте:

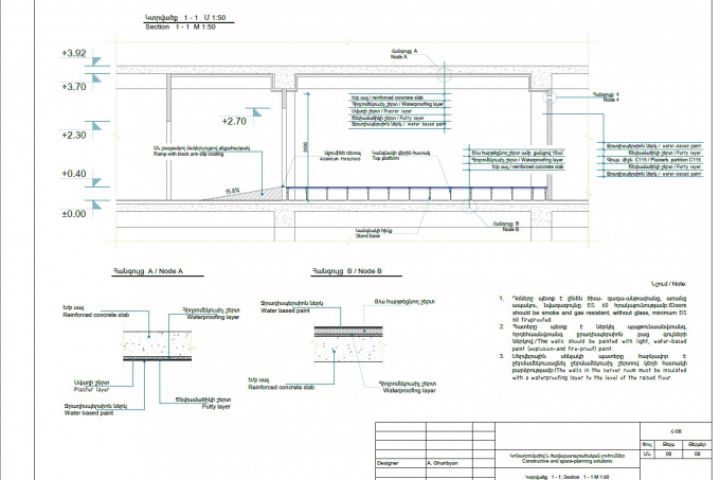
Конструктивные и объемно планировочные решения

Используемые навыки:

Описание

Конструктивные и объемно планировочные решения

Презентация проекта

pic4233326.jpg

Оценили проект:

0