Рейтинг: 69
не верифицирован
Всего отзывов: 0
  • Работ в портфолио: 9
  • Типовых услуг: 0
  • Работ на продажу: 0
Была на сайте:

Мебель для детской комнаты

Используемые навыки:

Описание

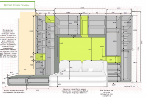
Эта детская комната была спроектирована дизайнером интеръера. В мою задачу входило расчиать размеры мебельных конструкций и их элементов учитывая габариты помещения и эргономику. На руки в качестве техзадания я получила только визуализацию и размеры помещения. Кроме того, было необходимо определить и согласовать материалы, цвет, комплектацию мебели, продумать конструктивные моменты, и просчитать комплектующие для производства мебели, составить смету. Это один из чертежей этого проекта.

Презентация проекта

pic3496292.jpg
2016-02-19_15-56-03.jpg

Оценили проект:

0