Рейтинг: 62
не верифицирован
Всего отзывов: 0
  • Работ в портфолио: 12
  • Типовых услуг: 0
  • Работ на продажу: 0
  • Зарегистрирован: 21.01.2016
Была на сайте:

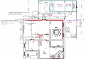
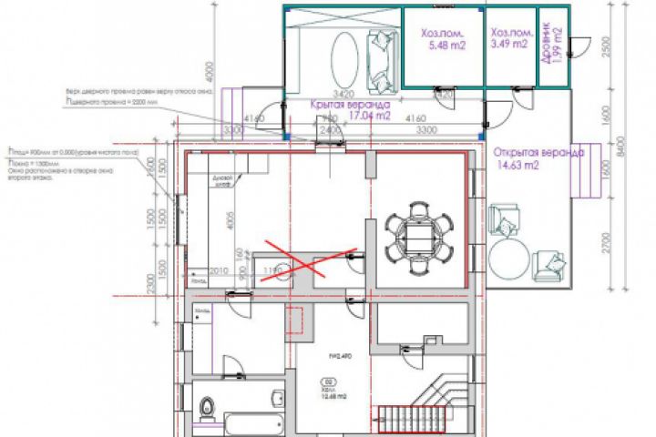
Проект перепланировки старого деревянного дома с цок. этажем

Используемые навыки:

Описание

Проект перепланировки дома старой постройки. В цокольном этаже находился не эксплуатируемый гараж, который было решено переделать под просторную кухню-столовую. Лестница крайне не удобна для пожилых владельцев дома, поэтому изменяя ее конфигурацию, мы сделаем ее более пологой, удобной и изящной. За домом решено построить крытую террасу, перенести в нее мастерскую, а так же хозяйственную часть и дровник, эксплуатируемый с улицы.
Расчистка холла от мелких конструкций давящих шкафов и кладовых, изменение марша лестницы, перенесение зоны кухни и столовой с видом на сад - все это в конечном счете приведет к потрясающим изменениям для владельцев.
А пока подготовка рабочей документации по интерьерам и устройство фундамента для террасы.

Презентация проекта

pic4196610.jpg
20210709_133311.jpg

Оценили проект:

0