Системы физической защиты вашего дома

Максим Нивин dvapyatdesyat

Рейтинг: 79
не верифицирован
Всего отзывов: 3 1
Выполнил заданий: 3
Опубликовал заданий: 3
  • Работ в портфолио: 19
  • Типовых услуг: 0
  • Работ на продажу: 0
Был на сайте:

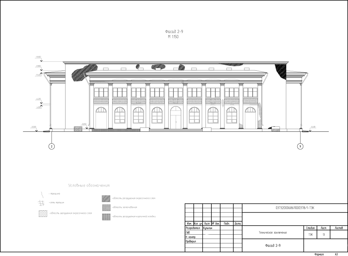
Техническое заключение о состоянии конструкций здания

Используемые навыки:

Описание

В ходе работы было выполнено: обследование конструкций, обмерочные работы, фотофиксация, составление заключения, обмерочные чертежи

Презентация проекта

pic1486655.jpg

Оценили проект:

0