Рейтинг: 51
не верифицирован
Всего отзывов: 0
  • Работ в портфолио: 1
  • Типовых услуг: 0
  • Работ на продажу: 0
Был на сайте:

Проектирование Элеваторов, ЗАВов , Складов напольного хранения

Описание

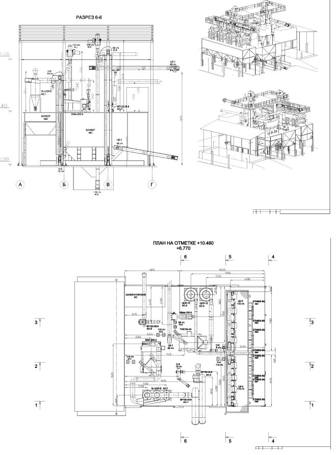
Разработка технологии зерноприемных предприятий (Элеваторов, Завов, Сушильно-очистительных башен, складов напольного хранения). Подбор и расчет оборудования, проектирование технологических схем, ОПР, строительных чертежей. 3Д-проектирование объекта. Расчет и детальное проектирование аспирационных сетей и продуктопроводов. Создание заказных спецификаций транспортного, технологического оборудования и фасонных элементов. Чертежи нестандартных металлоконструкций. Возможность выполнения замеров на территории заказчика. Возможность разработки электротехнической и строительной части проекта.
Работа в Autocad
Опыт работы в отраслевом проектировании 19 лет
Знание Английского, разговорный технический

Презентация проекта

pic4329308.jpg

Оценили проект:

0