Рейтинг: 53
не верифицирован
Всего отзывов: 0
  • Работ в портфолио: 3
  • Типовых услуг: 0
  • Работ на продажу: 0
Была на сайте:

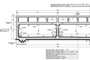
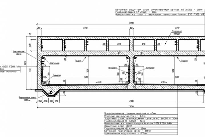
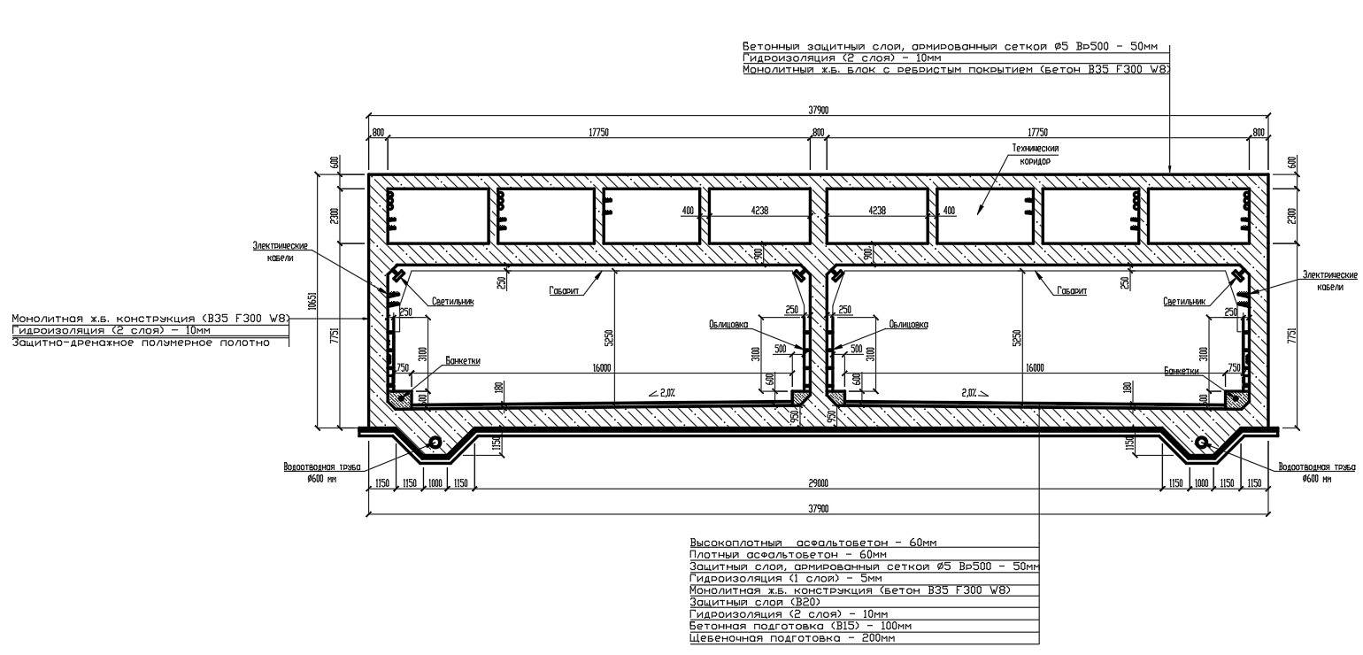
Поперечное сечение тоннеля котлованного способа работ

Используемые навыки:

Описание

Данный вариант предусматривает строительство тоннеля котлованным способом работ. Тоннель имеет 4 полосы движения в каждую сторону по 3 м и две полосы безопасности по краям шириной 1 м.
Автодорожные тоннели должны удовлетворять габаритам приближения строений и ширину проезжей части. В проекте габарит тоннеля принимается Г-16. Высота габарита составляет 5,25 м. Проезжая часть в тоннеле должна иметь поперечный уклон 20 %ₒ для стока воды.

Презентация проекта

pic4335681.jpg

Оценили проект:

0