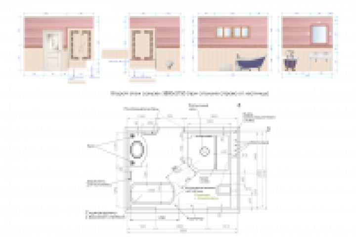
Развертки стен: раскладка плитки в ванной
Для полной функциональности этого сайта необходимо включить JavaScript.
Москва
На сайте с: 11.05.2011
Natalya Max
Angelly
Рейтинг: 170
не верифицирован
Всего отзывов:
8
0
Выполнила заданий:
1
Опубликовала заданий:
13
Нейросаммари
Активность:
Работ в портфолио:
65
Типовых услуг:
0
Работ на продажу:
0
Была на сайте:
2025-10-29 в 12:25
Предложить работу
Добавить в избранное
Добавить рекомендацию
Пожаловаться
Дизайн пространства
70
0
Развертки стен: раскладка плитки в ванной
Используемые навыки:
Дизайн интерьеров
Описание
Решение
Результат
Соавторы
Презентация проекта
Примеры реализации
Описание
Презентация проекта
Оценили проект:
0
×
Оценили проект
×
Авторизация
Для того чтобы оценивать проекты, вам нужно войти на сайт
Другие проекты
Все проекты
Загородный дом 2 - гостиная 2
Презентационная комната для автомобильного салона
План электрики
FREELANCE.RU
Toggle navigation
Нанять фрилансера
Заказчику
Найти по специализации
Найти по услугам
Провести конкурс
Разместить задание
Виртуальный HR
Другое
Найти работу
Фрилансеру
Найти задание
Присоединиться к команде
Участвовать в конкурсе
Предложить услугу
Другое
Возможности
Для заказчика
Для фрилансера
Вход
Разместить задание
▲