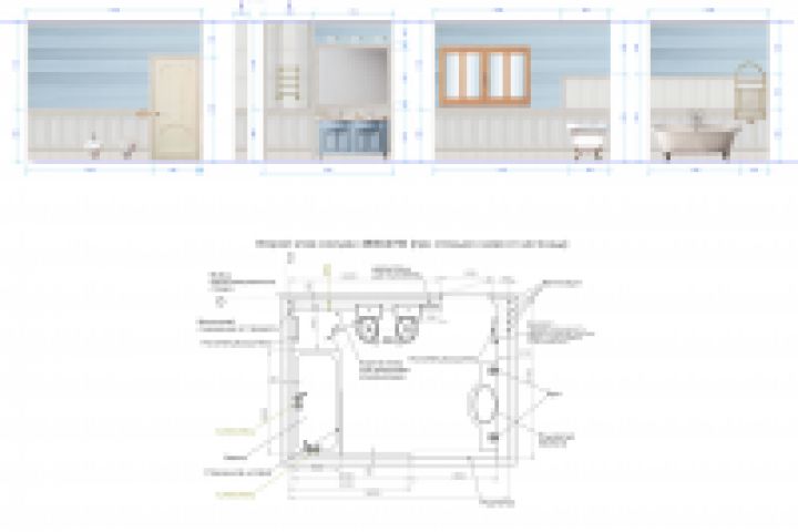
Развертки стен с раскладкой плитки в ванной
Для полной функциональности этого сайта необходимо включить JavaScript.
Москва
Natalya Max
Angelly
Рейтинг: 170
не верифицирован
Всего отзывов:
8
0
Выполнила заданий:
1
Опубликовала заданий:
13
Нейросаммари
Активность:
Работ в портфолио:
65
Типовых услуг:
0
Работ на продажу:
0
Зарегистрирован:
11.05.2011
Была на сайте:
2025-10-29 в 12:25
Предложить работу
Добавить в избранное
Добавить рекомендацию
Пожаловаться
Дизайн пространства
26
0
Развертки стен с раскладкой плитки в ванной
Используемые навыки:
Дизайн интерьеров
Описание
Решение
Результат
Соавторы
Презентация проекта
Примеры реализации
Описание
частный деревянный дом
Презентация проекта
Оценили проект:
0
×
Оценили проект
×
Авторизация
Для того чтобы оценивать проекты, вам нужно войти на сайт
Другие проекты
Все проекты
С/у в современном стиле
Монтажный план
дизайн-проект офиса: кабинет руководителей
FREELANCE.RU
Toggle navigation
Нанять фрилансера
Заказчику
Найти по специализации
Найти по услугам
Провести конкурс
Разместить задание
Виртуальный HR
Найти студию
Другое
Найти работу
Фрилансеру
Найти задание
Присоединиться к команде
Участвовать в конкурсе
Предложить услугу
Другое
Возможности
Для заказчика
Для фрилансера
Вход
Разместить задание
▲