Проектирование систем отопления, вентиляции, кондиционирования

Александр Шкуропацкий shkuropatsky

Рейтинг: 123
не верифицирован
Всего отзывов: 0
  • Работ в портфолио: 53
  • Типовых услуг: 0
  • Работ на продажу: 0
Был на сайте:

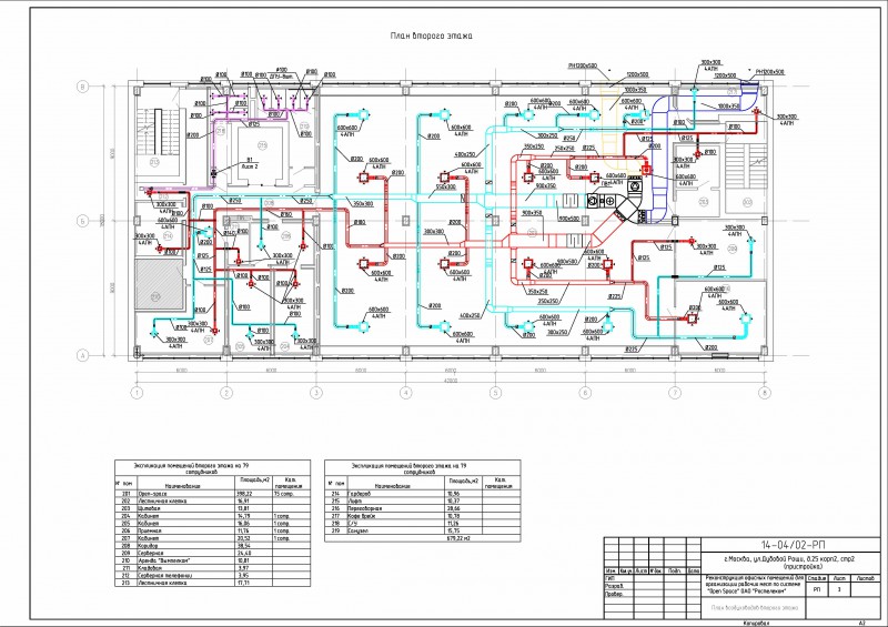
Ростелеком. Офис.Вентиляция.План 2-го этажа

Описание

Офис Росстелеком г. Москва.
Вентиляция кондиционирование.
Площадь 1200 м2.

Презентация проекта

pic2144855.jpg

Оценили проект:

0