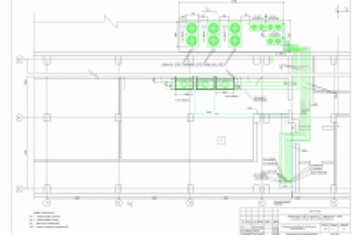
Серверная. Укртелеком. Кондиционирование. План на отм. -4800
Для полной функциональности этого сайта необходимо включить JavaScript.
Одесса
49 лет
На сайте с: 26.05.2014
Проектирование систем отопления, вентиляции, кондиционирования
Александр Шкуропацкий
shkuropatsky
Рейтинг: 123
не верифицирован
Всего отзывов:
0
Работ в портфолио:
53
Типовых услуг:
0
Работ на продажу:
0
Был на сайте:
2022-12-02 в 15:41
inbox
hvacdesign@list.ru
www.hvacdesign.net
Предложить работу
Добавить в избранное
Добавить рекомендацию
Пожаловаться
Инженерия
26
0
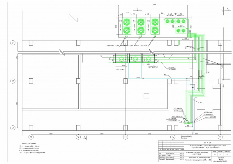
Серверная. Укртелеком. Кондиционирование. План на отм. -4800
Используемые навыки:
Теплоснабжение/Отопление/Вентиляция
Описание
Решение
Результат
Соавторы
Презентация проекта
Примеры реализации
Описание
Презентация проекта
Оценили проект:
0
×
Оценили проект
×
Авторизация
Для того чтобы оценивать проекты, вам нужно войти на сайт
Другие проекты
Все проекты
ТРЦ Вентиляция и кондиционирование
3D схема вентсистемы
Фитнес центр. Кондиционирование план
FREELANCE.RU
Toggle navigation
Нанять фрилансера
Заказчику
Найти по специализации
Найти по услугам
Провести конкурс
Разместить задание
Другое
Найти работу
Фрилансеру
Найти задание
Присоединиться к команде
Участвовать в конкурсе
Другое
Возможности
Для заказчика
Для фрилансера
Вход
Разместить задание
▲