Не топтаться на месте!

Никита Гаврилов elec3k

Рейтинг: 65
не верифицирован
Всего отзывов: 0
  • Работ в портфолио: 5
  • Типовых услуг: 0
  • Работ на продажу: 0
Был на сайте:

Работа 3416465

Описание

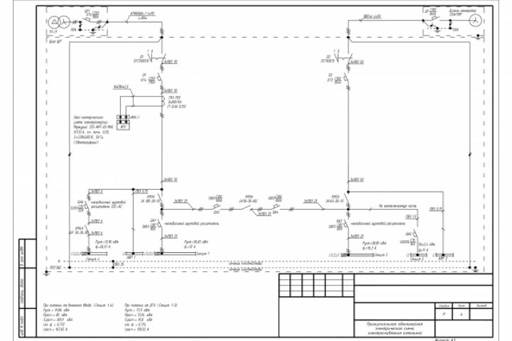
Однолинейная схема электроснабжения блок-модульной котельной

Презентация проекта

pic3416465.jpg

Оценили проект:

0