Добросовестный подход, качественное исполнение

Роман Белый belyiroma

Рейтинг: 115
не верифицирован
Всего отзывов: 0
  • Активность:
  • Работ в портфолио: 15
  • Типовых услуг: 0
  • Работ на продажу: 0
  • Возраст: 37 лет
  • Зарегистрирован: 30.05.2013
Был на сайте:

Капитальный ремонт улицы г.Кореновск

Используемые навыки:

Описание

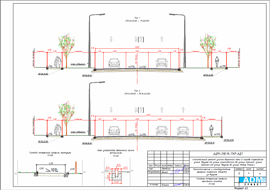
«Капитальный ремонт улично-дорожной сети в городе Кореновске: улица Фрунзе от улицы Циолковского до улицы Красной, улица Красная от улицы Фрунзе до улицы Новые Планы»

Презентация проекта

pic3787482.jpg
1.png
2.png
4.png
5.png
7.png
8.png
9.png
10.png

Оценили проект:

0