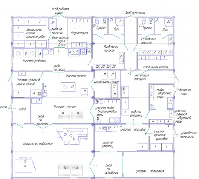
Ситуационный план 1
Для полной функциональности этого сайта необходимо включить JavaScript.
Екатеринбург
На сайте с: 19.05.2016
Кирилл Вилков
KirillVD
Рейтинг: 181
не верифицирован
Всего отзывов:
1
0
Активность:
Работ в портфолио:
91
Типовых услуг:
0
Работ на продажу:
0
Был на сайте:
2023-01-07 в 10:59
89221896561
inbox
telegram
whatsapp
delokv@yandex.ru
www.vdkengineering.ru
Предложить работу
Добавить в избранное
Добавить рекомендацию
Пожаловаться
Инженерия
36
0
Ситуационный план 1
Используемые навыки:
Проектирование объектов
Описание
Решение
Результат
Соавторы
Презентация проекта
Примеры реализации
Описание
Презентация проекта
Оценили проект:
0
×
Оценили проект
×
Авторизация
Для того чтобы оценивать проекты, вам нужно войти на сайт
Другие проекты
Все проекты
Промо стойка
Разработка технологических процессов
Платформа
FREELANCE.RU
Toggle navigation
Нанять фрилансера
Заказчику
Найти по специализации
Найти по услугам
Провести конкурс
Разместить задание
Другое
Найти работу
Фрилансеру
Найти задание
Присоединиться к команде
Участвовать в конкурсе
Другое
Возможности
Для заказчика
Для фрилансера
Вход
Разместить задание
▲