Рейтинг: 67
Паспорт верифицирован
Всего отзывов: 0
Опубликовал заданий: 2
  • Работ в портфолио: 7
  • Типовых услуг: 0
  • Работ на продажу: 0
  • Зарегистрирован: 15.03.2022
Был на сайте:

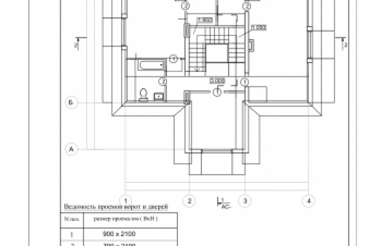
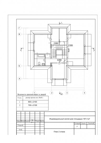
Жилой дом

Используемые навыки:

Описание

Двухэтажный жилой дом под Москвой. В мою работу вошли: планы этажей, фасады, разрезы, кровля, фундамент.

Презентация проекта

pic4357276.jpg

Оценили проект:

0