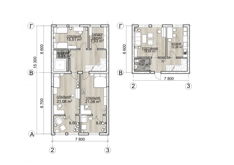
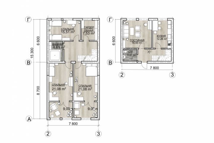
Планировочное решение двухэтажной квартиры
Для полной функциональности этого сайта необходимо включить JavaScript.
Москва
Анна Могирева
anyamogireva
Рейтинг: 79
не верифицирован
Всего отзывов:
0
Работ в портфолио:
9
Типовых услуг:
0
Работ на продажу:
0
Возраст:
26 лет
Зарегистрирован:
25.05.2020
Была на сайте:
2023-02-03 в 12:17
inbox
Предложить работу
Добавить в избранное
Добавить рекомендацию
Пожаловаться
Дизайн пространства
28
0
Планировочное решение двухэтажной квартиры
Используемые навыки:
Архитектурное проектирование
Описание
Решение
Результат
Соавторы
Презентация проекта
Примеры реализации
Описание
Презентация проекта
Оценили проект:
0
×
Оценили проект
×
Авторизация
Для того чтобы оценивать проекты, вам нужно войти на сайт
Другие проекты
Все проекты
Планировочное решение трех квартир
Два варианта планировочных решений
Проект концертного зала
FREELANCE.RU
Toggle navigation
Нанять фрилансера
Заказчику
Каталог фрилансеров
Каталог PRO
Каталог студий
Каталог услуг
Каталог работ
Виртуальный HR
Умный поиск
Провести конкурс
Разместить задание
Найти работу
Найти задание
Присоединиться к команде
Участвовать в конкурсе
Предложить услугу
Вход
Разместить задание
▲