Рейтинг: 34
не верифицирован
Всего отзывов: 0
  • Работ в портфолио: 4
  • Типовых услуг: 0
  • Работ на продажу: 0
  • Зарегистрирован: 21.02.2023
Был на сайте:

Проект Комплекса торговых зданий "Богоявленские линии»,1870-е"

Используемые навыки:

Описание

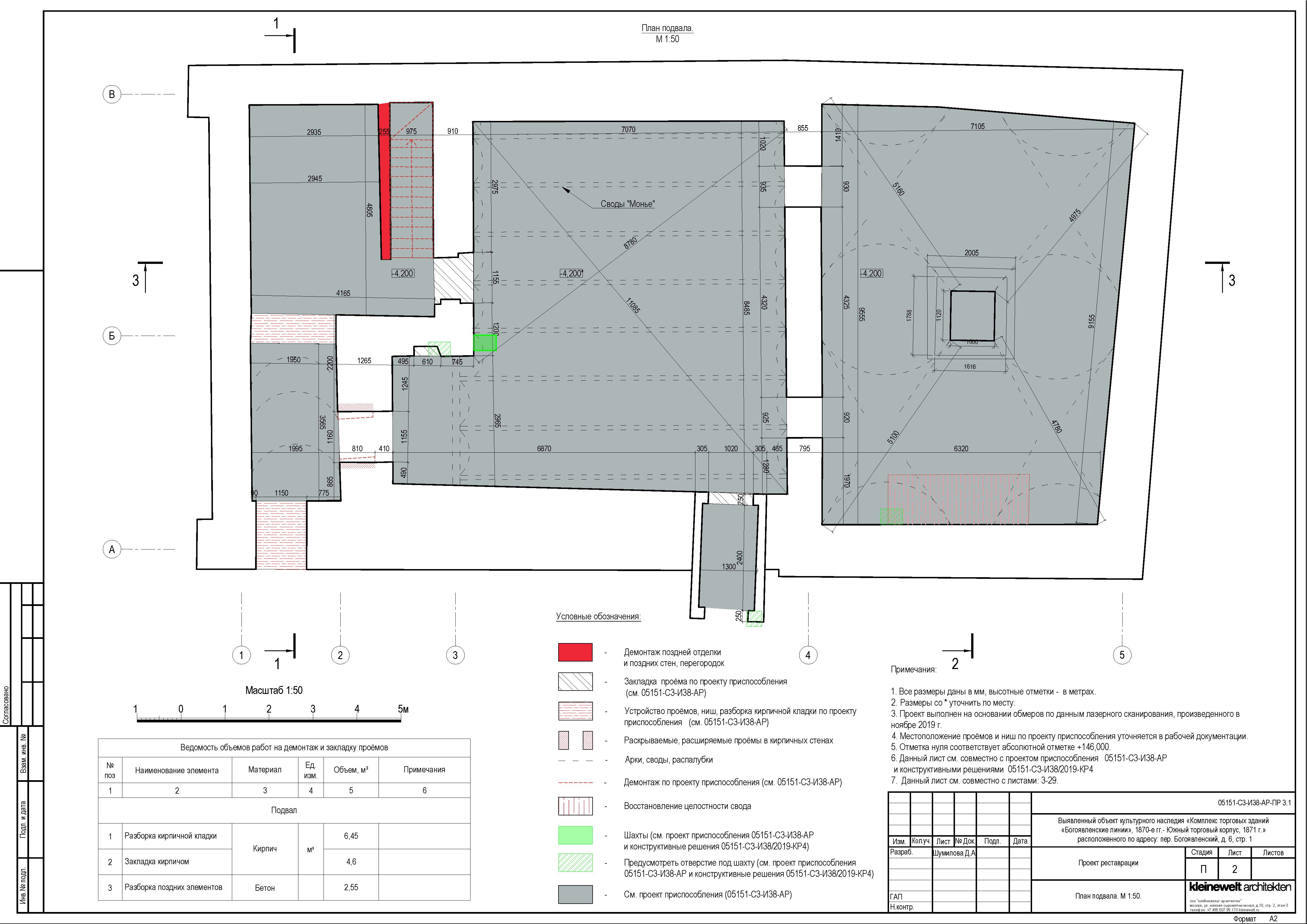
Проект реставрации выявленного объекта культурного наследия "Комплекс торговых зданий «Богоявленские линии», 1870-е гг.- Южный торговый корпус, 1871 г.», расположенный по адресу: пер. Богоявленский, д. 6, строение 1"
На основании сравнительного анализа с данными историко-архивными исследованиями выполнен проект реставрации памятника с приспособлением для современного использования.
Выявленный объект культурного наследия «Комплекс торговых зданий «Богоявленские линии», 1870 гг. – Южный торговый комплекс, 1871 г.», расположен по адресу: г. Москва, Богоявленский пер., д. 6, стр. 1.
Построено в 1870-х гг. в составе комплекса теплых зданий «Богоявленские линии» на земле, принадлежавшей Богоявленскому монастырю, для торговых целей. Декорация фасада выполнена в выразительных формах эклектики последней трети XIX в.
На основании изученных историко-архивных материалов и натурных исследований, обмеров и архивных изысканий был разработан проект реставрации. Проектные решения по реставрации разработаны с учётом сохранения архитектурного облика фасадов.

Презентация проекта

pic4408346.jpg
Пр01_Страница_30.jpg
Пр01_Страница_31.jpg
Пр01_Страница_38.jpg
Пр01_Страница_39.jpg

Оценили проект:

0