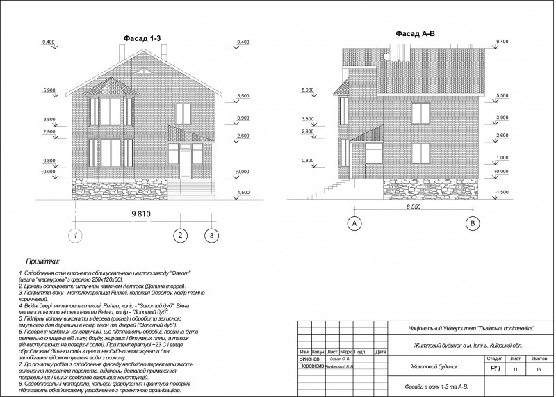
Частный дом. Рабочий проект. Фасады
Для полной функциональности этого сайта необходимо включить JavaScript.
Киев
На сайте с: 17.12.2013
Даже если ты дворник, ты должен быть лучшим в своем деле
Оксана Ракичинская
curdis
Рейтинг: 265
не верифицирован
Всего отзывов:
7
0
Выполнила заданий:
5
Активность:
Работ в портфолио:
130
Типовых услуг:
0
Работ на продажу:
0
Была на сайте:
2023-02-26 в 12:36
+380637455108
inbox
curdis@ukr.net
Предложить работу
Добавить в избранное
Добавить рекомендацию
Пожаловаться
Инженерия
28
0
Частный дом. Рабочий проект. Фасады
Используемые навыки:
Чертежи/Схемы
Описание
Решение
Результат
Соавторы
Презентация проекта
Примеры реализации
Описание
Презентация проекта
Оценили проект:
0
×
Оценили проект
×
Авторизация
Для того чтобы оценивать проекты, вам нужно войти на сайт
Другие проекты
Все проекты
Дизайн проект двухкомнатной квартиры в современном стиле, г.Киев
Дизайн интерьера двухкомнатной квартиры в современном стиле
Кухня
FREELANCE.RU
Toggle navigation
Нанять фрилансера
Заказчику
Найти по специализации
Найти по услугам
Провести конкурс
Разместить задание
Виртуальный HR
Другое
Найти работу
Фрилансеру
Найти задание
Присоединиться к команде
Участвовать в конкурсе
Предложить услугу
Другое
Возможности
Для заказчика
Для фрилансера
Вход
Разместить задание
▲