работа по душе! созидай и вдохновляй

Anastasia Volkova archwell

Рейтинг: 167
не верифицирован
Всего отзывов: 0
Выполнила заданий: 1
  • Работ в портфолио: 18
  • Типовых услуг: 0
  • Работ на продажу: 0
Была на сайте:

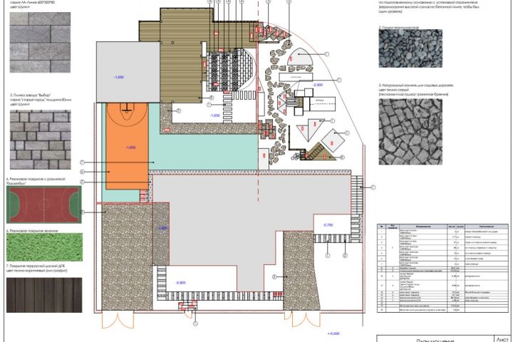
план мощения

Используемые навыки:

Описание

зонирование зем.участка, разработка малых арх.форм (беседка, навесы, конструкции и платформы для цветов, дом для инвентаря)+чертежи без прокладки инж. коммуникаций на участке

Презентация проекта

pic4654240.jpg

Оценили проект:

0