Дизайн-Проект квартиры
Для полной функциональности этого сайта необходимо включить JavaScript.
Краснодар
На сайте с: 16.11.2014
Владимир Алдакушев
aldakushev
Рейтинг: 79
не верифицирован
Всего отзывов:
1
0
Опубликовал заданий:
12
Активность:
Работ в портфолио:
4
Типовых услуг:
0
Работ на продажу:
0
Был на сайте:
2023-03-02 в 18:03
Предложить работу
Добавить в избранное
Добавить рекомендацию
Пожаловаться
Дизайн пространства
18
0
Дизайн-Проект квартиры
Используемые навыки:
Дизайн интерьеров
Описание
Решение
Результат
Соавторы
Презентация проекта
Примеры реализации
Описание
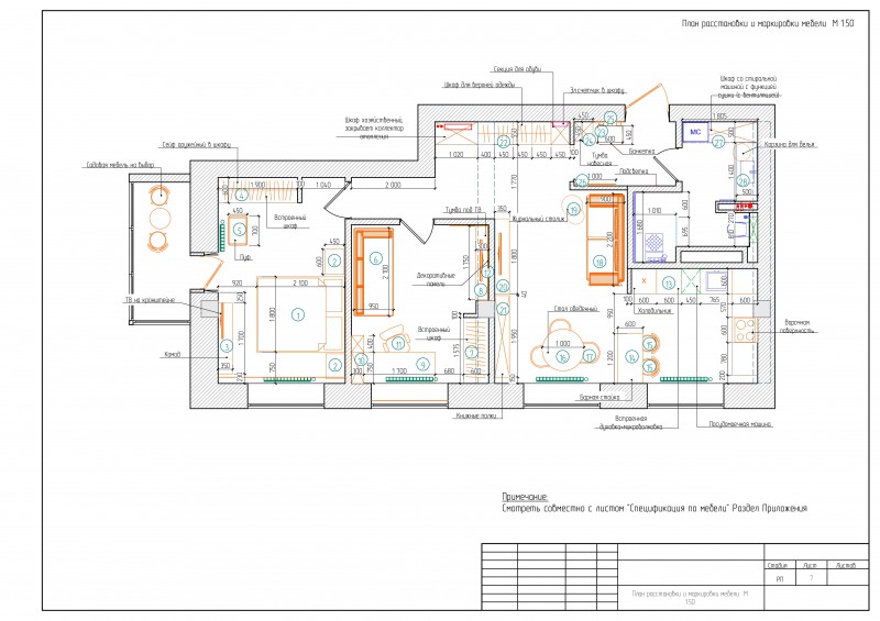
Дизайн-Проект квартиры для молодой пары.
Презентация проекта
Оценили проект:
0
×
Оценили проект
×
Авторизация
Для того чтобы оценивать проекты, вам нужно войти на сайт
Другие проекты
Все проекты
Дизайн-проект 3-х комнатной квартиры
Дизайн-Проект квартиры
Дизайн-Проект Офиса Немецкой компании
FREELANCE.RU
Toggle navigation
Нанять фрилансера
Заказчику
Найти по специализации
Найти по услугам
Провести конкурс
Разместить задание
Виртуальный HR
Другое
Найти работу
Фрилансеру
Найти задание
Присоединиться к команде
Участвовать в конкурсе
Предложить услугу
Другое
Возможности
Для заказчика
Для фрилансера
Вход
Разместить задание
▲