Рейтинг: 83
не верифицирован
Всего отзывов: 0
Опубликовал заданий: 3
  • Активность:
  • Работ в портфолио: 3
  • Типовых услуг: 0
  • Работ на продажу: 0
Был на сайте:

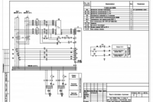
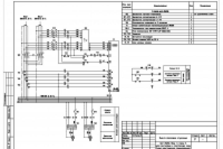
Щит 2ЩСУ1. Схема электрическая принципиальная

Используемые навыки:

Описание

Щит станций управления фильтр-прессового отделения обогатительной фабрики.
На листе отображены ввод питания, цепи измерения и собственных нужд.

Презентация проекта

pic2516001.jpg

Оценили проект:

0