Проектирование/благоустройство/дизайн

(Архитектор) Юлия Самарина samarinajulia

Рейтинг: 133
не верифицирован
Всего отзывов: 5 0
Выполнила заданий: 6
  • Работ в портфолио: 48
  • Типовых услуг: 0
  • Работ на продажу: 0
Была на сайте:

Проект благоустройства

Используемые навыки:

Описание

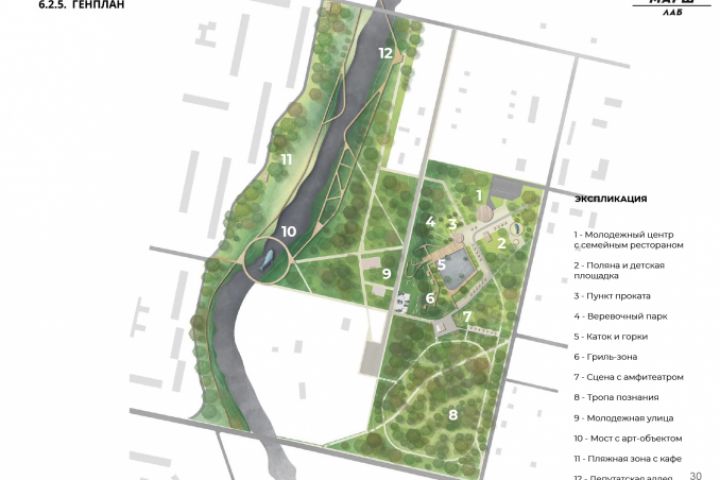
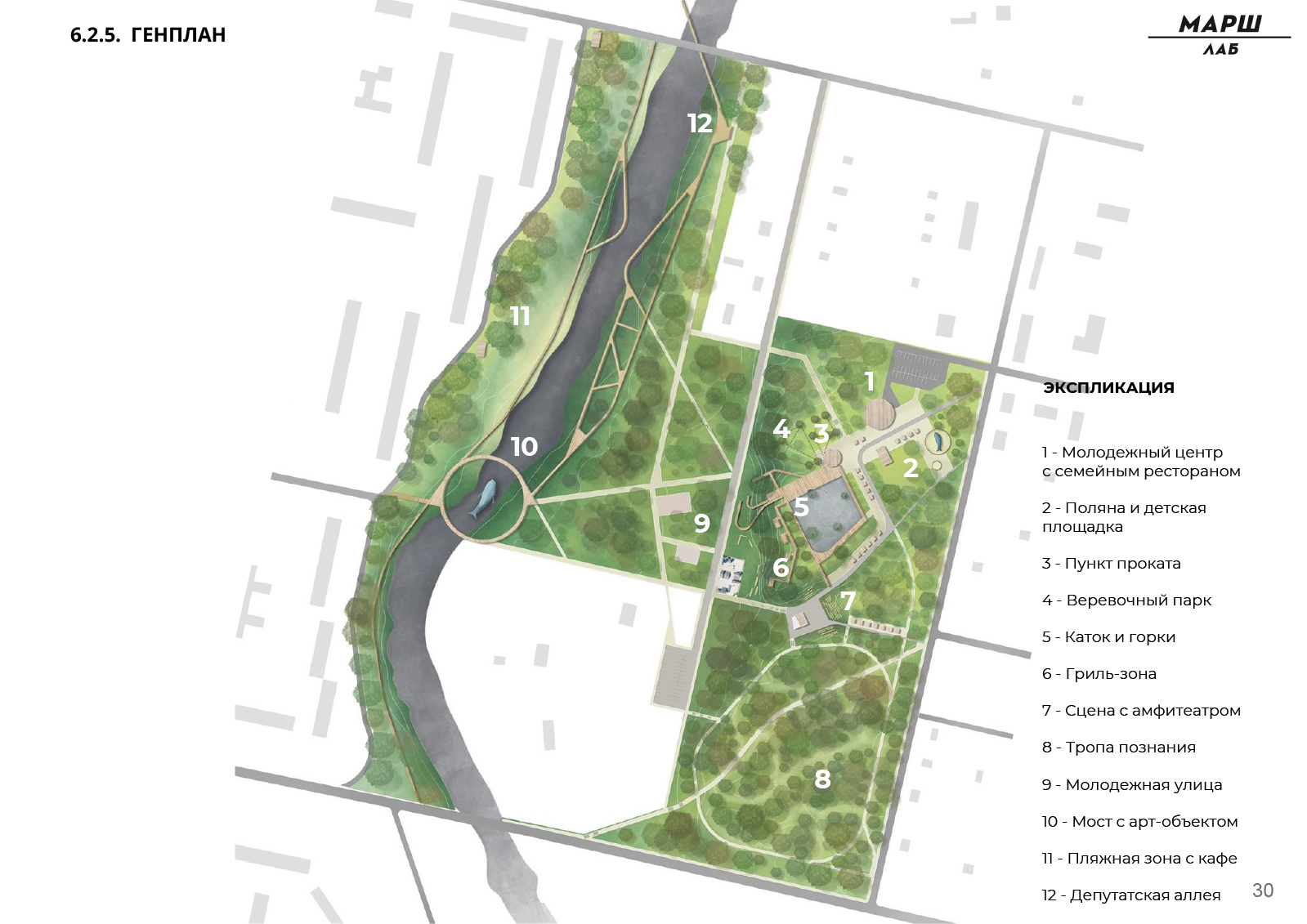
Проект благоустройства города Луга разработан в рамках воркшопа МАРШлаб. Концепция выиграла конкурс и получила финансирование.

Презентация проекта

pic3812260.jpg
album_luga_leningradskaya olast'-32.jpg

Оценили проект:

0