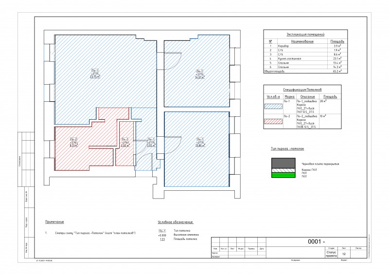
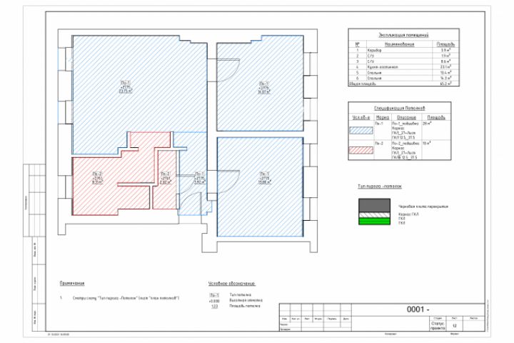
План отделки потолков
Для полной функциональности этого сайта необходимо включить JavaScript.
Санкт-Петербург
На сайте с: 22.08.2021
Милана Кравцова
kravtsovam
Рейтинг: 95
не верифицирован
Всего отзывов:
0
Работ в портфолио:
35
Типовых услуг:
0
Работ на продажу:
0
Была на сайте:
2023-04-18 в 13:48
+79627119484
inbox
telegram
whatsapp
www.behance.net/kravtsovam
Предложить работу
Добавить в избранное
Добавить рекомендацию
Пожаловаться
Инженерия
70
0
План отделки потолков
Используемые навыки:
Чертежи/Схемы
Описание
Решение
Результат
Соавторы
Презентация проекта
Примеры реализации
Описание
План отделки потолков
Презентация проекта
Оценили проект:
0
×
Оценили проект
×
Авторизация
Для того чтобы оценивать проекты, вам нужно войти на сайт
Другие проекты
Все проекты
Коллаж гостиной
Коллаж тв зоны
План демонтажа
FREELANCE.RU
Toggle navigation
Нанять фрилансера
Заказчику
Найти по специализации
Найти по услугам
Провести конкурс
Разместить задание
Виртуальный HR
Другое
Найти работу
Фрилансеру
Найти задание
Присоединиться к команде
Участвовать в конкурсе
Другое
Возможности
Для заказчика
Для фрилансера
Вход
Разместить задание
▲