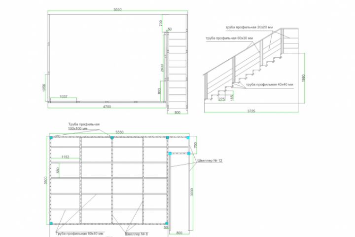
Надстройка второго этажа в ангаре по офис
Для полной функциональности этого сайта необходимо включить JavaScript.
Тюмень
На сайте с: 16.08.2017
toni green
toni_green
Рейтинг: 112
не верифицирован
Всего отзывов:
2
0
Выполнено заданий:
3
Работ в портфолио:
32
Типовых услуг:
1
Работ на продажу:
1
Был на сайте:
2023-04-21 в 18:32
+79829174969
inbox
whatsapp
antoshgreen@gmail.com
Предложить работу
Добавить в избранное
Добавить рекомендацию
Пожаловаться
Инженерия
54
0
Надстройка второго этажа в ангаре по офис
Используемые навыки:
Промышленное и гражданское строительство
Описание
Решение
Результат
Соавторы
Презентация проекта
Примеры реализации
Описание
Презентация проекта
Оценили проект:
0
×
Оценили проект
×
Авторизация
Для того чтобы оценивать проекты, вам нужно войти на сайт
Другие проекты
Все проекты
Расчёт подвесного потолка со светильниками
Бетонная рампа и металлический навес
Расстановка мебели
FREELANCE.RU
Toggle navigation
Нанять фрилансера
Заказчику
Найти по специализации
Найти по услугам
Провести конкурс
Разместить задание
Виртуальный HR
Другое
Найти работу
Фрилансеру
Найти задание
Присоединиться к команде
Участвовать в конкурсе
Предложить услугу
Другое
Возможности
Для заказчика
Для фрилансера
Вход
Разместить задание
▲