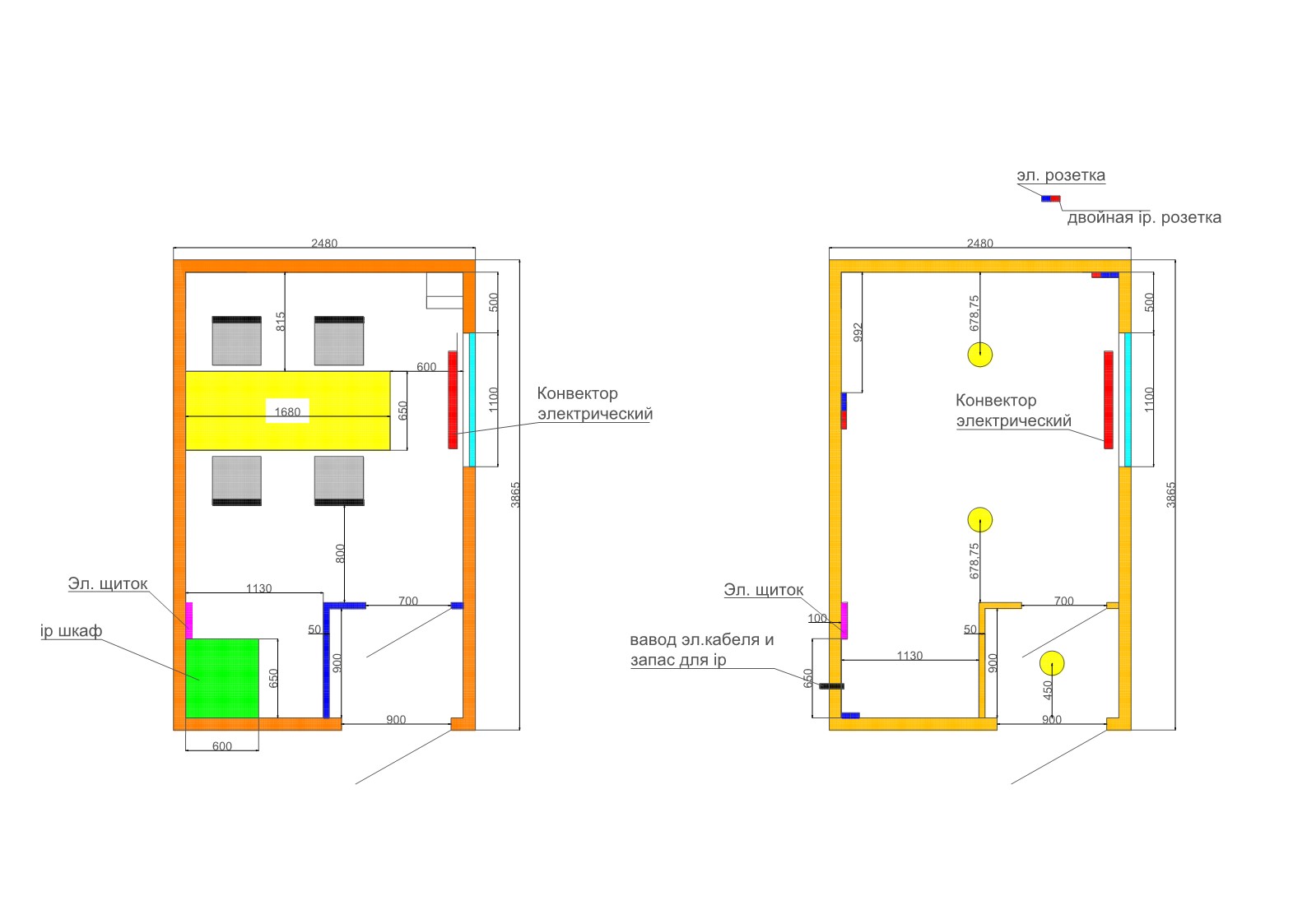
Вагончик-под офис
Для полной функциональности этого сайта необходимо включить JavaScript.
Тюмень
toni green
toni_green
Рейтинг: 112
не верифицирован
Всего отзывов:
2
0
Выполнено заданий:
3
Работ в портфолио:
32
Типовых услуг:
1
Работ на продажу:
1
Зарегистрирован:
16.08.2017
Был на сайте:
2023-04-21 в 18:32
+79829174969
inbox
whatsapp
antoshgreen@gmail.com
Предложить работу
Добавить в избранное
Добавить рекомендацию
Пожаловаться
Инженерия
47
0
Вагончик-под офис
Используемые навыки:
Промышленное и гражданское строительство
Описание
Решение
Результат
Соавторы
Презентация проекта
Примеры реализации
Описание
Презентация проекта
Оценили проект:
0
×
Оценили проект
×
Авторизация
Для того чтобы оценивать проекты, вам нужно войти на сайт
Другие проекты
Все проекты
Металлические ворота
Скамья для присяда со штангой
сетка для мин.ваты
FREELANCE.RU
Toggle navigation
Нанять фрилансера
Заказчику
Каталог фрилансеров
Каталог PRO
Каталог студий
Каталог услуг
Каталог работ
Виртуальный HR
Умный поиск
Провести конкурс
Разместить задание
Найти работу
Найти задание
Присоединиться к команде
Участвовать в конкурсе
Предложить услугу
Вход
Разместить задание
▲