Рейтинг: 72
не верифицирован
Всего отзывов: 0
  • Работ в портфолио: 2
  • Типовых услуг: 0
  • Работ на продажу: 0
Был на сайте:

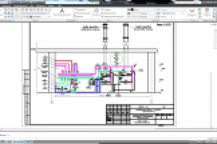
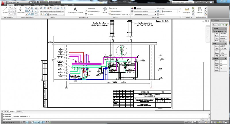
Котельная

Описание

Проект котельной, включающий в себя разделы ГСН, ГСВ, ТМ, ЭМ, АТМ

Презентация проекта

pic2609737.jpg

Оценили проект:

0