Погружен в Вашу задачу на 110%

Константин Серов serovcv

Рейтинг: 117
не верифицирован
Всего отзывов: 8 0
Выполнил заданий: 8
  • Работ в портфолио: 17
  • Типовых услуг: 0
  • Работ на продажу: 0
  • Образование: Cпециалитет
  • Стаж работы: 13 лет
  • Тип занятости: Подработка
  • Юридический статус:Самозанятый
Был на сайте:

Проектирование узлов прохода инженерных коммуникаций + 3д модель

Используемые навыки:

Описание

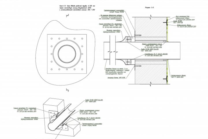
Узел прохода трубопровода ПНД через монолитную ж\б стену с герметизацией в стыке с ПНД футеровкой внутренней стены.

Презентация проекта

pic3397008.jpg

Оценили проект:

0