Погружен в Вашу задачу на 110%

Константин Серов serovcv

Рейтинг: 117
не верифицирован
Всего отзывов: 8 0
Выполнил заданий: 8
  • Работ в портфолио: 17
  • Типовых услуг: 0
  • Работ на продажу: 0
  • Образование: Cпециалитет
  • Стаж работы: 13 лет
  • Тип занятости: Подработка
  • Юридический статус:Самозанятый
Был на сайте:

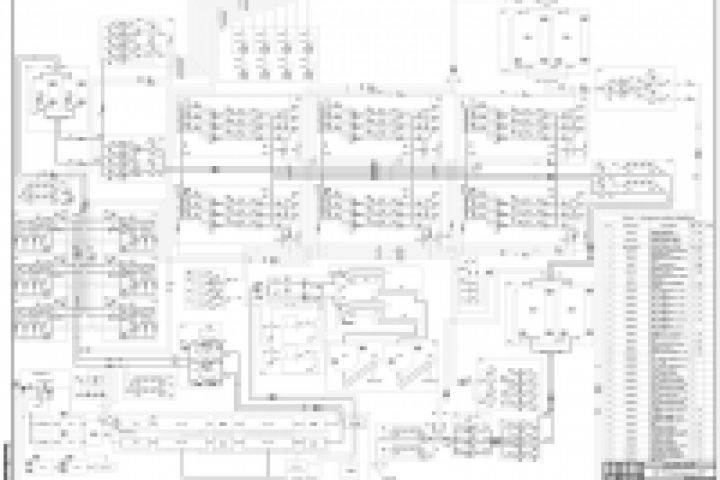
Система очистки сточных вод нефтеперерабатывающего предприятия

Используемые навыки:

Описание

Общие проектные решения по системе очистки сточных вод нефтеперерабатывающего завода производительностью 24000 куб.м/сут. В систему в качестве основного оборудования включены биосорбционные фильтры, ультрафильтрационные мембранные блоки, декантерные центрифуги и десятки других видов оборудования. Заложенная стоимость системы порядка 800 млн.руб.

Презентация проекта

pic2064126.jpg
ОПР БОС подписанный1_Страница_064.jpg

Оценили проект:

0