Рейтинг: 133
не верифицирован
Всего отзывов: 0
  • Активность:
  • Работ в портфолио: 83
  • Типовых услуг: 1
  • Работ на продажу: 0
Была на сайте:

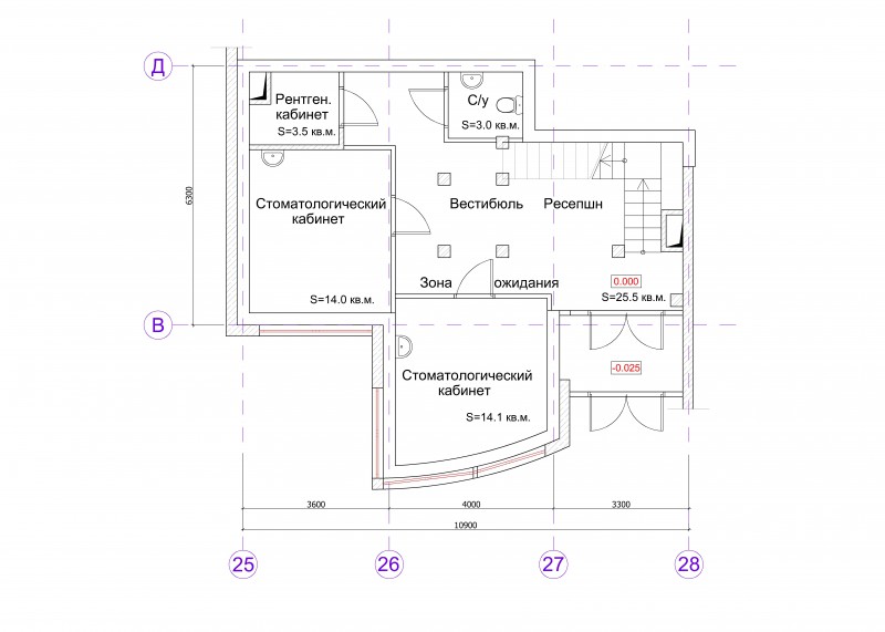
Планировочное решение для стоматологической поликлиники (1 этаж)

Используемые навыки:

Описание

Первый вариант планировки для стоматологической поликлиники (г.Москва) . Первый этаж.

При проектировании использовались последние нововведения по нормативам для стоматологических поликлиник СанПиН 2.1.3.2630-10.
http://sovbuh.ru/zhurnaly/sovetnik_buhgaltera_v_zdravoohranenii/vypusk_7_2010/novye_sanitarnye_normy_dlya_stomatologicheskih_medicinskih_organizacij_chast_1_razmewenie_vnutrennyaya_otdelka_mikroklimat_osvew/

"В Приложении № 2 к новым СанПиН 2.1.3.2630-10 приведены состав, набор и минимальные рекомендуемые площади помещений стоматологических медицинских организаций.
В частности, в нем сказано, что в минимальный набор помещений для работы стоматологической медицинской организации входят:
1) вестибюльная группа (минимальная площадь – 10 кв.м);
2) кабинет врача-стоматолога – минимальная площадь должна составлять 14 кв.м с увеличением на 10 кв.м на каждую дополнительную стоматологическую установку или на 7 кв.м на каждое дополнительное стоматологическое кресло без установки (бормашины);
3) комната персонала (минимально 6 кв.м, с гардеробом);
4) туалет (площадью не менее 3 кв.м);
5) кладовая (не менее 3 кв.м)."

На основе этой информации была разработана планировка помещения с двумя этажами. По нормативам высота стоматологического кабинета должна быть не менее 2,6 м. Таким образом, на первом этаже были расположены два стоматологических кабинета площадью 14 м2 и высотой 2,6м. На втором этаже была организована комната персонала площадью 6 м2, помещение для компрессоров, стерилизационная комната, кладовая площадью 3 м2, косметологический кабинет.

Отсутствие жилых соседских помещений позволило устроить на первом этаже рентген кабинет. За стенкой нашего помещения расположена нежилая зона вестибюля, а над рентген кабинетом будет расположена стерилизационная комната.

Презентация проекта

pic2454191.jpg

Оценили проект:

0