Всегда на связи.

Степан Кузнецов Wont

Рейтинг: 135
не верифицирован
Всего отзывов: 0
  • Активность:
  • Работ в портфолио: 25
  • Типовых услуг: 0
  • Работ на продажу: 0
  • Возраст: 33 года
  • Зарегистрирован: 07.01.2014
Был на сайте:

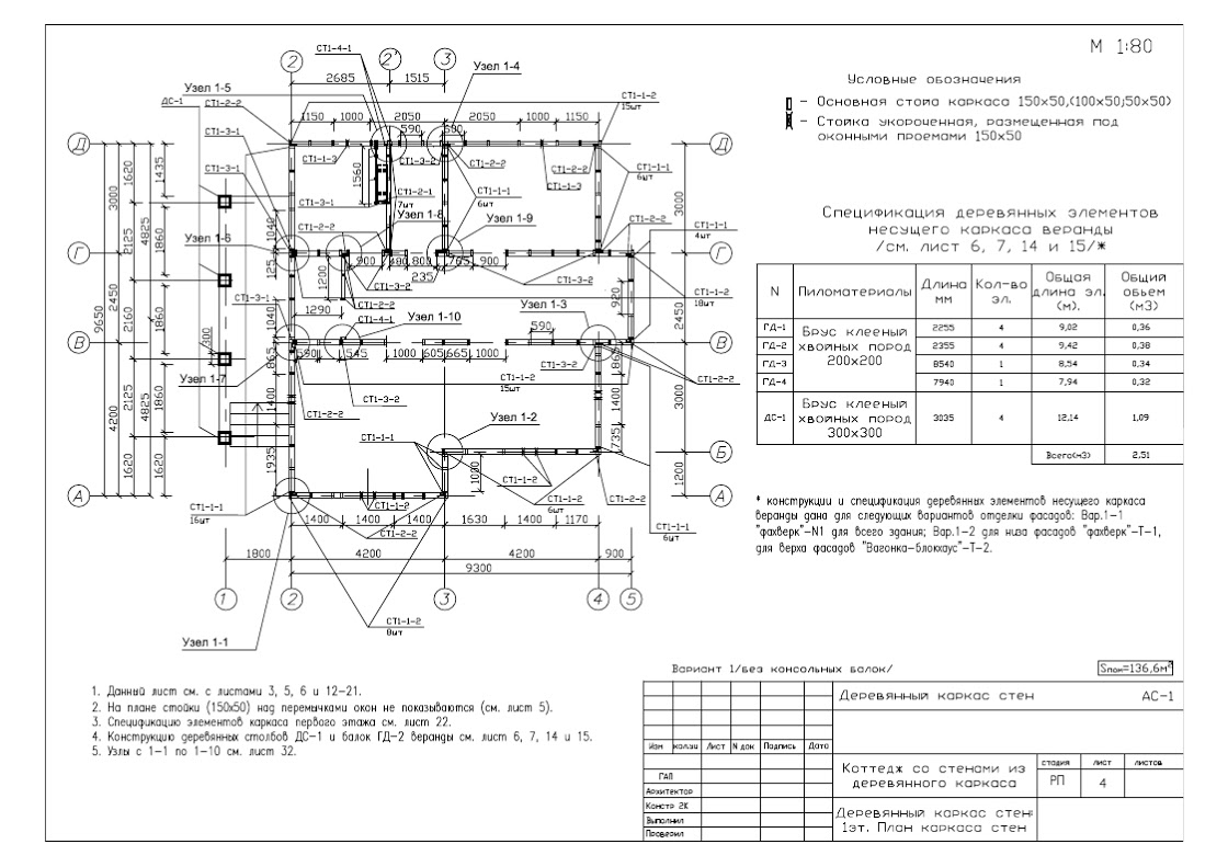
Каркасный дом 136 м2.

Используемые навыки:

Описание

Каркасный дом. Раздел АС. Заказчик предоставил готовый проект, в который необходимо было внести правки.

Ссылки на примеры реализации

 drive.google.com/folderview?id=0B_zUAP6C7Qasb0RhY0...

Презентация проекта

pic2560367.jpg

Оценили проект:

0