Всегда на связи.

Степан Кузнецов Wont

Рейтинг: 135
не верифицирован
Всего отзывов: 0
  • Активность:
  • Работ в портфолио: 25
  • Типовых услуг: 0
  • Работ на продажу: 0
Был на сайте:

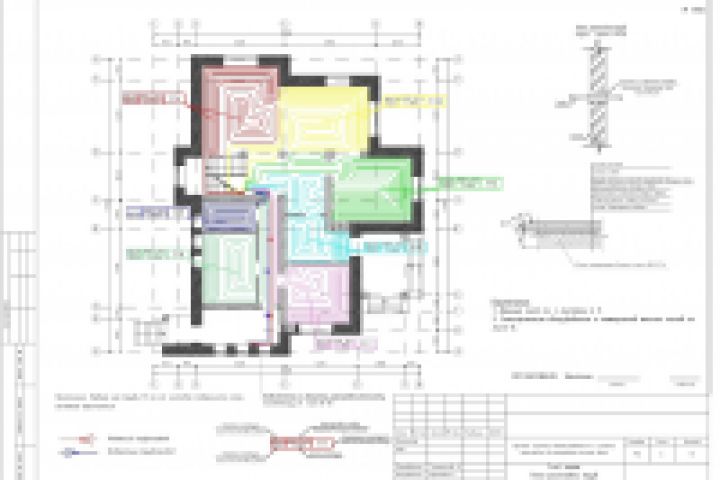
ОВ и ВК коттеджа 295 м2.

Описание

Требовалось выполнить разделы ВК и ОВ. На первом этаже необходимо было запроектировать систему тёплых полов.

Ссылки на примеры реализации

 drive.google.com/folderview?id=0B_zUAP6C7Qasb0RhY0...

Презентация проекта

pic2560357.jpg

Оценили проект:

0