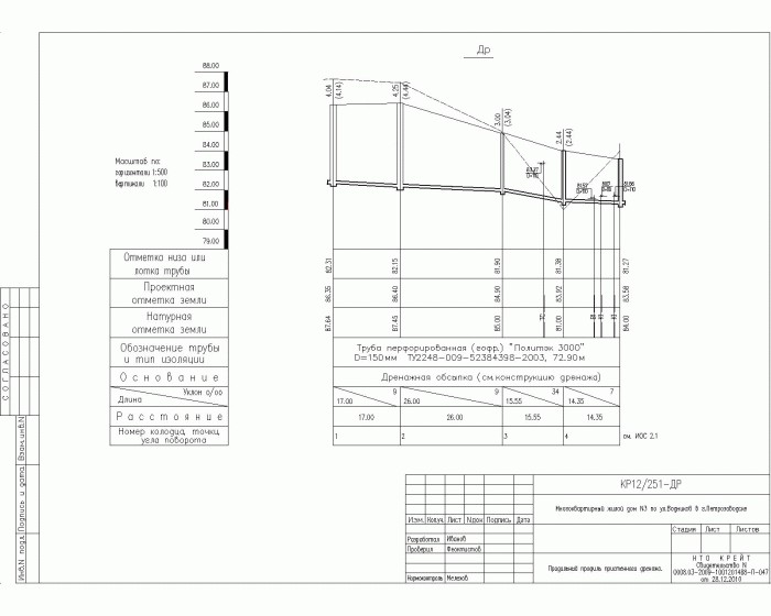
Продольный профиль дренажа
Для полной функциональности этого сайта необходимо включить JavaScript.
Петрозаводск
Дмитрий Иванов
karelgenplan
Рейтинг: 121
не верифицирован
Всего отзывов:
2
0
Выполнил заданий:
2
Нейросаммари
Активность:
Работ в портфолио:
31
Типовых услуг:
0
Работ на продажу:
0
Зарегистрирован:
20.05.2014
Был на сайте:
2025-09-12 в 00:08
89114312973
inbox
arx_dima@mail.ru
Предложить работу
Добавить в избранное
Добавить рекомендацию
Пожаловаться
Инженерия
111
0
Продольный профиль дренажа
Используемые навыки:
Чертежи/Схемы
Описание
Решение
Результат
Соавторы
Презентация проекта
Примеры реализации
Описание
Продольный профиль пристенного дренажа.
Презентация проекта
Оценили проект:
0
×
Оценили проект
×
Авторизация
Для того чтобы оценивать проекты, вам нужно войти на сайт
Другие проекты
Все проекты
План благоустройства - база 120 Га
Конструкция пристенного дренажа
Коттеджный поселок Карельская деревня
FREELANCE.RU
Toggle navigation
Нанять фрилансера
Заказчику
Найти по специализации
Найти по услугам
Провести конкурс
Разместить задание
Виртуальный HR
Найти студию
Другое
Найти работу
Фрилансеру
Найти задание
Присоединиться к команде
Участвовать в конкурсе
Предложить услугу
Другое
Возможности
Для заказчика
Для фрилансера
Вход
Разместить задание
▲