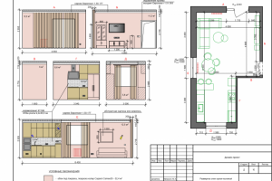
Развертка стен кухни-гостиной
Для полной функциональности этого сайта необходимо включить JavaScript.
Пермь
45 лет
На сайте с: 30.01.2025
“Творить и преображать: мой уникальный дизайн”
Yulia Matrunich
miraart80
Рейтинг: 2 109
не верифицирован
Всего отзывов:
1
0
Профессионализм:
10
Коммуникация:
10
Нейросаммари
Работ в портфолио:
43
Типовых услуг:
3
Работ на продажу:
0
Стаж работы:
18 лет
Тип занятости:
Полный фриланс
Юридический статус:
Частное лицо
Была на сайте:
2026-02-11 в 21:34
+79129838880
inbox
telegram
whatsapp
www.matrunichart.ru
Вконтакте
Предложить работу
Добавить в избранное
Добавить рекомендацию
Пожаловаться
Инженерия
129
0
Развертка стен кухни-гостиной
Используемые навыки:
Чертежи/Схемы
Описание
Решение
Результат
Соавторы
Презентация проекта
Примеры реализации
Описание
пакет рабочих чертежей для строителей
Презентация проекта
Оценили проект:
0
×
Оценили проект
×
Авторизация
Для того чтобы оценивать проекты, вам нужно войти на сайт
Другие проекты
Все проекты
Квартира с зеброй
план напольных покрытий
Дом в стиле фьюжн: гармония контрастов
FREELANCE.RU
Toggle navigation
Нанять фрилансера
Заказчику
Найти по специализации
Найти по услугам
Провести конкурс
Разместить задание
Виртуальный HR
Другое
Найти работу
Фрилансеру
Найти задание
Присоединиться к команде
Участвовать в конкурсе
Предложить услугу
Другое
Возможности
Для заказчика
Для фрилансера
Вход
Разместить задание
▲