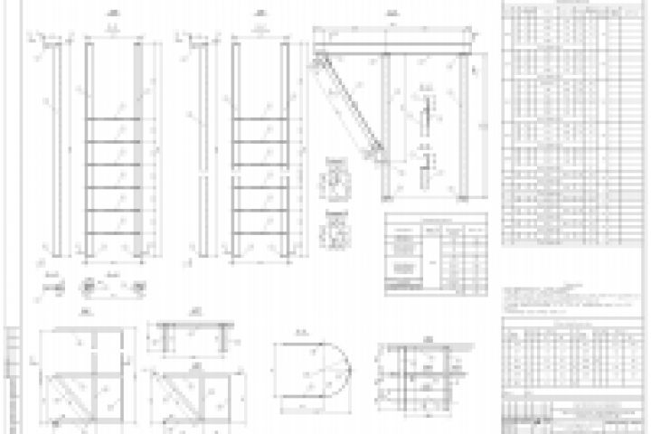
Металлоконструкции
Для полной функциональности этого сайта необходимо включить JavaScript.
Челябинск
34 года
На сайте с: 16.11.2013
Проектирование каркасных домов
Георгий Трофимов
art-cottage.ru
Рейтинг: 174
не верифицирован
Всего отзывов:
7
0
Опубликовал заданий:
118
Нейросаммари
Активность:
Работ в портфолио:
49
Типовых услуг:
0
Работ на продажу:
0
Был на сайте:
2025-12-04 в 08:08
Предложить работу
Добавить в избранное
Добавить рекомендацию
Пожаловаться
Инженерия
26
0
Металлоконструкции
Используемые навыки:
Строительные конструкции
Описание
Решение
Результат
Соавторы
Презентация проекта
Примеры реализации
Описание
Ссылки на примеры реализации
art-cottage.ru
Презентация проекта
Оценили проект:
0
×
Оценили проект
×
Авторизация
Для того чтобы оценивать проекты, вам нужно войти на сайт
Другие проекты
Все проекты
Работа 2947491
Работа 2947495
Работа 2249792
FREELANCE.RU
Toggle navigation
Нанять фрилансера
Заказчику
Найти по специализации
Найти по услугам
Провести конкурс
Разместить задание
Другое
Найти работу
Фрилансеру
Найти задание
Присоединиться к команде
Участвовать в конкурсе
Другое
Возможности
Для заказчика
Для фрилансера
Вход
Разместить задание
▲