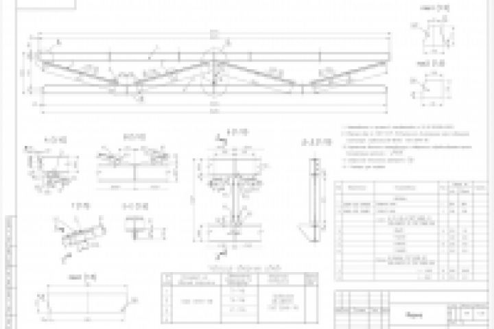
ферма. КМД . Выполнено по ЕСКД.
Для полной функциональности этого сайта необходимо включить JavaScript.
Москва
47 лет
На сайте с: 19.04.2014
для всего найдется свое решение!
светлана Ковальс
kovals
Рейтинг: 86
не верифицирован
Всего отзывов:
0
Опубликовала заданий:
1
Работ в портфолио:
16
Типовых услуг:
0
Работ на продажу:
0
Была на сайте:
2023-07-27 в 15:08
Предложить работу
Добавить в избранное
Добавить рекомендацию
Пожаловаться
Инженерия
18
0
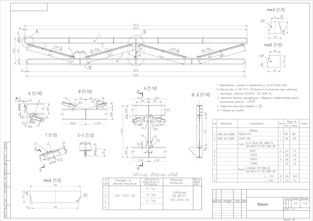
ферма. КМД . Выполнено по ЕСКД.
Используемые навыки:
Строительные конструкции
Описание
Решение
Результат
Соавторы
Презентация проекта
Примеры реализации
Описание
ферма. КМД . Выполнено по ЕСКД.
Презентация проекта
Оценили проект:
0
×
Оценили проект
×
Авторизация
Для того чтобы оценивать проекты, вам нужно войти на сайт
Другие проекты
Все проекты
Причал для катера (подпорная стена) на сваях . Расчет+проект КЖ
Металлоконструкции для имиджевых офисов с панорамным остеклением
Крышные буквыМеталлоконструкции под неоновые буквы на крыше дома
FREELANCE.RU
Toggle navigation
Нанять фрилансера
Заказчику
Найти по специализации
Найти по услугам
Провести конкурс
Разместить задание
Виртуальный HR
Другое
Найти работу
Фрилансеру
Найти задание
Присоединиться к команде
Участвовать в конкурсе
Другое
Возможности
Для заказчика
Для фрилансера
Вход
Разместить задание
▲