Рейтинг: 881
Паспорт верифицирован
Всего отзывов: 1 0
Профессионализм: 10 Коммуникация: 10
Выполнила заданий: 2
  • Работ в портфолио: 172
  • Типовых услуг: 10
  • Работ на продажу: 0
  • Зарегистрирован: 01.11.2023
  • Образование: Бакалавриат
  • Юридический статус:Самозанятый
Была на сайте:

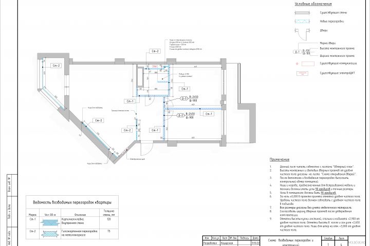
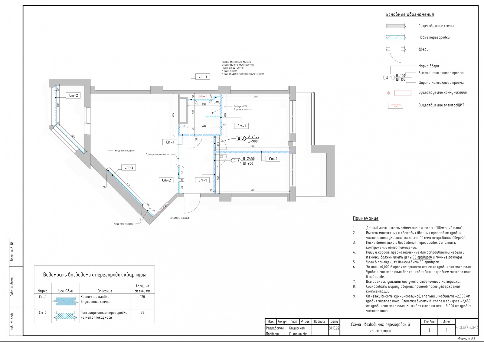
Дизайн интерьера квартиры в современном стиле

Используемые навыки:

Описание

Дизайн интерьера квартиры в современном стиле

Презентация проекта

pic4499709.jpg

Оценили проект:

0