Рейтинг: 1 986
Паспорт верифицирован
Всего отзывов: 1 0
Профессионализм: 10 Коммуникация: 10
Выполнила заданий: 2
  • Работ в портфолио: 171
  • Типовых услуг: 10
  • Работ на продажу: 0
  • Образование: Бакалавриат
Была на сайте:

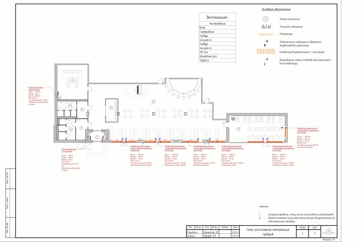
Схема расположения отопительных приборов в ресторане

Используемые навыки:

Описание

Схема расположения отопительных приборов в ресторане

Презентация проекта

pic4591053.jpg

Оценили проект:

0