Чертежи для строителей
Для полной функциональности этого сайта необходимо включить JavaScript.
Татьяна Грачева
tatgrachova
Рейтинг: 35
не верифицирован
Всего отзывов:
0
Работ в портфолио:
15
Типовых услуг:
0
Работ на продажу:
0
Зарегистрирован:
19.11.2021
Был на сайте:
2023-09-17 в 15:42
inbox
Предложить работу
Добавить в избранное
Добавить рекомендацию
Пожаловаться
3D графика
21
0
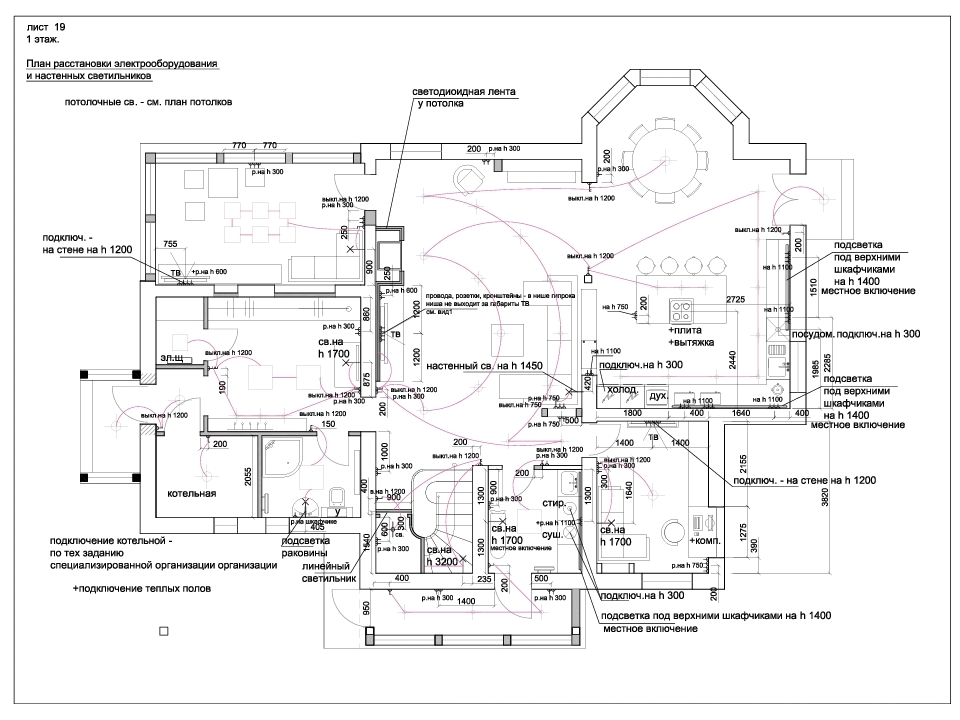
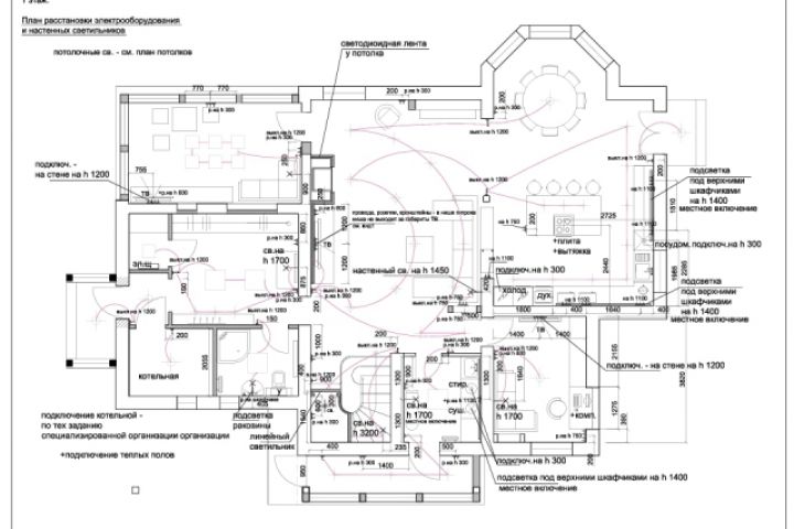
Чертежи для строителей
Используемые навыки:
3D Интерьеры
Описание
Решение
Результат
Соавторы
Презентация проекта
Примеры реализации
Описание
Полный комплект чертежей
Презентация проекта
Оценили проект:
0
×
Оценили проект
×
Авторизация
Для того чтобы оценивать проекты, вам нужно войти на сайт
Другие проекты
Все проекты
Создание коллажей
Пример визуализации
Пример визуализации
FREELANCE.RU
Toggle navigation
Нанять фрилансера
Заказчику
Найти по специализации
Найти по услугам
Провести конкурс
Разместить задание
Виртуальный HR
Найти студию
Другое
Найти работу
Фрилансеру
Найти задание
Присоединиться к команде
Участвовать в конкурсе
Предложить услугу
Другое
Возможности
Для заказчика
Для фрилансера
Вход
Разместить задание
▲