Рейтинг: 118
не верифицирован
Всего отзывов: 0
Опубликовал заданий: 5
  • Активность:
  • Работ в портфолио: 18
  • Типовых услуг: 0
  • Работ на продажу: 0
  • Возраст: 39 лет
  • Зарегистрирован: 02.05.2012
Был на сайте:

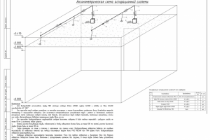
Аксонометрическая схема аспирационной системы для АУГПТ

Используемые навыки:

Описание

Аксонометрическая схема аспирационной системы для АУГПТ

Презентация проекта

pic3624288.jpg

Оценили проект:

0